Maison neuve à
Trélazé (49800) Référence : RS2361800_1

Prix du projet : Maison avec Terrain

prix 251 200 €

  • 5 pièces
  • 3 chambres
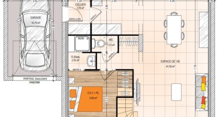
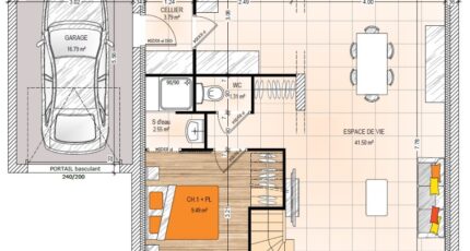
  • Surface maison 85 m2

VENTE d'une maison de 5 pièces (85 m²) à Trélazé
MAISON 5 PIÈCES NEUVE - PROCHE D'ANGERS
À vendre : située à 7 km d'Angers, à Trélazé (49800), Maisons Bernard Jambert Angers vous propose cette maison de 5 pièces de 85 m² et de 300 m² de terrain.
Cette maison possède 2 niveaux. Son intérieur est composé de trois chambres, d'une cuisine et de deux salles de bains. La maison est neuve.
Il y a l'École Maternelle Publique Jacques Prévert, l'École Élémentaire Publique Henri et Yvonne Dufour et l'École Primaire Publique Aimé Césaire à moins de 10 minutes à pied. Niveau transports en commun, on trouve la gare Trélazé dans un rayon de 1 km. Les autoroutes A87N, A11 et A87 sont accessibles à moins de 8 km. Il y a une bibliothèque, deux boulangeries, des commerces et une épicerie à quelques minutes à peine.
Elle est proposée à l'achat pour 251 200 €.
N'hésitez pas à prendre contact avec Roman SALAS (tél : 02-41-77-17-17) pour toute question sur cette maison. Faites de vos projets immobiliers une réalité avec Maisons Bernard Jambert Angers.

Mentions légales

Terrain proposé par un partenaire foncier selon disponibilités et autorisation de publicité au prix de 70 000 €. Hors droit d'enregistrement et frais de notaire. Terrain + Maison proposés au prix de 181 200 € (Hors branchements et raccordements, papiers peints, peintures, revêtement de sol dans les chambres. Tarif modifiable sans préavis). Etiquette énergie : A. Différents modèles disponibles pour ce terrain. Assurances et garanties du constructeur (RC professionnelle, décennale, dommage ouvrage, garantie de remboursement de l'acompte, livraison à prix et délai convenu) : https://www.maisons-bernard-jambert.com/informations-legales/.

Contactez l'agence de Angers

02 41 77 17 17

    * Champs obligatoires

    Vos informations sont traitées par HEXAOM et transmises à un conseiller commercial qui vous contactera afin de répondre à votre demande. Les plans et images présentés sur notre site sont la propriété d’HEXAOM et ne peuvent pas être reproduits sans son accord. Pour retrouver notre politique de protection des données personnelles et exercer vos droits conformément à la « loi informatique et liberté » cliquez-ici.