Maison neuve à
Tiercé (49125) Référence : RS2445874_1

Prix du projet : Maison avec Terrain

prix 267 800 €

  • 5 pièces
  • 3 chambres
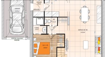
  • Surface maison 85 m2

Maison de 5 pièces (85 m²) en vente à Tiercé
MAISON 5 PIÈCES NEUVE - PROCHE D'ANGERS
À vendre à quelques kilomètres d'Angers, nous sommes ravis de vous proposer cette maison de 5 pièces de 85 m² à Tiercé (49125). Elle est composée de trois chambres, d'une cuisine et de deux salles de bains.
Le terrain de la propriété est de 600 m².
C'est une maison de 2 niveaux. Elle est neuve.
L'École Primaire Privée Notre-Dame, l'École Maternelle Publique Marie Laurencin et l'École Élémentaire Publique le Rondeau sont implantées à moins de 10 minutes à pied. Côté transports en commun, il y a la gare Tiercé dans les environs. On trouve un tennis, des commerces, deux boucheries-charcuteries, une épicerie et un bureau de poste à quelques minutes du bien.
Son prix de vente est de 267 800 €.
Prenez contact avec Roman SALAS (tél : 02-41-77-17-17) pour toute question sur cette maison.

Mentions légales

Terrain proposé par un partenaire foncier selon disponibilités et autorisation de publicité au prix de 81 000 €. Hors droit d'enregistrement et frais de notaire. Terrain + Maison proposés au prix de 267 800 € (Hors branchements et raccordements, papiers peints, peintures, revêtement de sol dans les chambres. Tarif modifiable sans préavis). Etiquette énergie : A. Différents modèles disponibles pour ce terrain. Assurances et garanties du constructeur (RC professionnelle, décennale, dommage ouvrage, garantie de remboursement de l'acompte, livraison à prix et délai convenu) : https://www.maisons-bernard-jambert.com/informations-legales/.

Contactez l'agence de Angers

02 41 77 17 17

    * Champs obligatoires

    Vos informations sont traitées par HEXAOM et transmises à un conseiller commercial qui vous contactera afin de répondre à votre demande. Les plans et images présentés sur notre site sont la propriété d’HEXAOM et ne peuvent pas être reproduits sans son accord. Pour retrouver notre politique de protection des données personnelles et exercer vos droits conformément à la « loi informatique et liberté » cliquez-ici.