Maison neuve à
Tiercé
(49125) Référence :
CP2419121_2
Prix du projet : Maison avec Terrain
prix 324 000 €
- 6 pièces
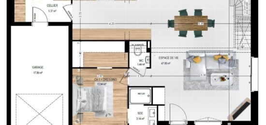
- 4 chambres
- Surface maison 119 m2
Tiercé : maison T6 (119 m²) en vente
QUARTIER RECHERCHÉ - MAISON 6 PIÈCES NEUVE
En vente : située à 18 km d'Angers, découvrez cette maison de 6 pièces de 119 m² située dans un secteur recherché de Tiercé (49125). Son intérieur propose quatre chambres, une cuisine et deux salles de bains.
Le terrain de la propriété s'étend sur 574 m².
Il s'agit d'une maison de 2 niveaux. Elle est neuve.
La maison est située dans un quartier convoité. L'École Primaire Privée Notre-Dame, l'École Maternelle Publique Marie Laurencin et l'École Élémentaire Publique le Rondeau se trouvent à moins de 10 minutes à pied. Niveau transports, il y a la gare Tiercé à quelques pas du bien. Les autoroutes A11, A85 et A87N sont accessibles à moins de 13 km. On trouve un tennis, des commerces, trois boulangeries, un supermarché, un bureau de poste et une épicerie dans les environs.
Son prix de vente est de 324 000 €.
Contactez notre agence (Carole PORCHER : 06-88-98-52-77) pour plus d'informations sur la maison, sur les démarches à suivre ou sur les modalités de vente. Maisons Bernard Jambert Angers est là pour vous accompagner dans tous vos projets immobiliers.
Mentions légales
Terrain proposé par un partenaire foncier selon disponibilités et autorisation de publicité au prix de 77 490 €. Hors droit d'enregistrement et frais de notaire. Terrain + Maison proposés au prix de 324 000 € (Hors branchements et raccordements, papiers peints, peintures, revêtement de sol dans les chambres. Tarif modifiable sans préavis). Etiquette énergie : A. Différents modèles disponibles pour ce terrain. Assurances et garanties du constructeur (RC professionnelle, décennale, dommage ouvrage, garantie de remboursement de l'acompte, livraison à prix et délai convenu) : https://www.maisons-bernard-jambert.com/informations-legales/.Agence Maisons Bernard Jambert de Angers (49000)
- Téléphone :
- 02 41 77 17 17
- Adressse :
- 55 bd Eugène Chaumin
49000 Angers, France