Maison neuve à
Soucelles (49140) Référence : RS2380723_3

Prix du projet : Maison avec Terrain

prix 274 000 €

  • 5 pièces
  • 3 chambres
  • Surface maison 85 m2

VENTE d'une maison F5 (85 m²) à Soucelles
PROCHE D'ANGERS - MAISON 5 PIÈCES NEUVE
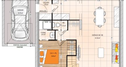
À quelques kilomètres d'Angers, nous vous présentons cette maison de 5 pièces de 85 m² en vente à Soucelles (49140). Elle comporte trois chambres, une cuisine et deux salles de bains.
Le terrain de la maison est de 551 m².
Il s'agit d'une maison de 2 niveaux. Elle est neuve.
On trouve l'École Primaire Privée et l'École Primaire Privée Sacré-Coeur à moins de 10 minutes à pied. Niveau transports en commun, il y a deux gares (Le Vieux Briollay et Tiercé) à moins de 10 minutes en voiture. Les autoroutes A11, A85 et A87N sont accessibles à moins de 10 km. On trouve deux tennis, un port de plaisance, deux supermarchés, une boulangerie et un bureau de poste dans les environs.
Elle est à vendre pour la somme de 274 000 €.
N'hésitez pas à prendre contact avec Roman SALAS (tél : 02-41-77-17-17) pour plus de renseignements sur cette maison, sur les démarches à suivre ou sur les modalités de vente. Maisons Bernard Jambert Angers vous accompagne dans tous vos projets immobiliers et à toutes les étapes de votre projet.

Mentions légales

Terrain proposé par un partenaire foncier selon disponibilités et autorisation de publicité au prix de 90 915 €. Hors droit d'enregistrement et frais de notaire. Terrain + Maison proposés au prix de 183 085 € (Hors branchements et raccordements, papiers peints, peintures, revêtement de sol dans les chambres. Tarif modifiable sans préavis). Etiquette énergie : A. Différents modèles disponibles pour ce terrain. Assurances et garanties du constructeur (RC professionnelle, décennale, dommage ouvrage, garantie de remboursement de l'acompte, livraison à prix et délai convenu) : https://www.maisons-bernard-jambert.com/informations-legales/.

Contactez l'agence de Angers

02 41 77 17 17

    * Champs obligatoires

    Vos informations sont traitées par HEXAOM et transmises à un conseiller commercial qui vous contactera afin de répondre à votre demande. Les plans et images présentés sur notre site sont la propriété d’HEXAOM et ne peuvent pas être reproduits sans son accord. Pour retrouver notre politique de protection des données personnelles et exercer vos droits conformément à la « loi informatique et liberté » cliquez-ici.