Maison neuve à
Soucelles (49140) Référence : RS2349309_3

Prix du projet : Maison avec Terrain

prix 247 800 €

  • 5 pièces
  • 3 chambres
  • Surface maison 85 m2

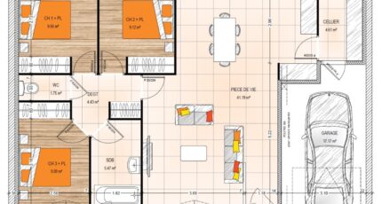
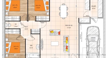
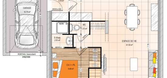
VENTE d'une maison de 5 pièces (85 m²) à Soucelles
PROCHE D'ANGERS - MAISON 5 PIÈCES NEUVE
À vendre à 15 km d'Angers, nous sommes heureux de vous présenter cette maison de 5 pièces de plain-pied de 85 m² à Soucelles (49140).
Elle compte trois chambres, une cuisine et une salle de bains. La maison est neuve.
Le terrain de la propriété s'étend sur 505 m².
Il y a l'École Primaire Privée et l'École Primaire Privée Sacré-Coeur à moins de 10 minutes à pied. Niveau transports, on trouve les gares Le Vieux Briollay et Tiercé à moins de 10 minutes en voiture. Les autoroutes A11, A85 et A87N sont accessibles à moins de 10 km. Il y a deux tennis, un port de plaisance, deux supermarchés, une boulangerie et un bureau de poste à quelques minutes du logement.
Elle est proposée à l'achat pour 247 800 €.
Contactez Roman SALAS (02-41-77-17-17) pour obtenir de plus amples renseignements sur cette maison, sur les modalités de vente ou sur les démarches à suivre.

Mentions légales

Terrain proposé par un partenaire foncier selon disponibilités et autorisation de publicité au prix de 83 325 €. Hors droit d'enregistrement et frais de notaire. Maison proposée, avec un contrat de construction de maison individuelle, dans le cadre de la loi du 19/12/1990, au prix de 164 475 € (Hors branchements et raccordements, papiers peints, peintures, revêtement de sol dans les chambres, qui sont chiffrés dans les travaux qui restent à charge du client. Tarif modifiable sans préavis). Étiquette énergie : A. Différents modèles disponibles pour ce terrain. Assurances et garanties du constructeur comprises (RC professionnelle, décennale, dommage ouvrage).

Contactez l'agence de Angers

02 41 77 17 17

    * Champs obligatoires

    Vos informations sont traitées par HEXAOM et transmises à un conseiller commercial qui vous contactera afin de répondre à votre demande. Les plans et images présentés sur notre site sont la propriété d’HEXAOM et ne peuvent pas être reproduits sans son accord. Pour retrouver notre politique de protection des données personnelles et exercer vos droits conformément à la « loi informatique et liberté » cliquez-ici.