Maison neuve à
Soucelles (49140) Référence : RS2340317_3

Prix du projet : Maison avec Terrain

prix 269 700 €

  • 6 pièces
  • 4 chambres
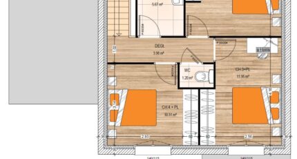
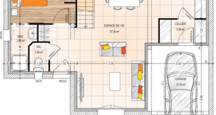
  • Surface maison 99 m2

Maison T6 (99 m²) en vente à Soucelles
MAISON 6 PIÈCES NEUVE - PROCHE D'ANGERS
À vendre à 15 km d'Angers, Maisons Bernard Jambert Angers vous propose cette maison de 6 pièces de 99 m² et de 447 m² de terrain à Soucelles (49140).
Cette maison comporte 2 niveaux. Son intérieur offre quatre chambres, une cuisine et deux salles de bains. La maison est neuve.
L'École Primaire Privée et l'École Primaire Privée Sacré-Coeur sont implantées à moins de 10 minutes à pied. Niveau transports, on trouve deux gares (Le Vieux Briollay et Tiercé) à moins de 10 minutes en voiture. Les autoroutes A11, A85 et A87N sont accessibles à moins de 10 km. Il y a deux tennis, un port de plaisance, deux supermarchés, une boulangerie et un bureau de poste à proximité.
Son prix de vente est de 269 700 €.
N'hésitez pas à prendre contact avec notre agence (Roman SALAS : 02-41-77-17-17) pour toute information sur ce bien, sur les démarches à suivre ou sur les modalités de vente. Maisons Bernard Jambert Angers est là pour vous accompagner dans tous vos projets immobiliers.

Mentions légales

Terrain proposé par un partenaire foncier selon disponibilités et autorisation de publicité au prix de 73 755 €. Hors droit d'enregistrement et frais de notaire. Maison proposée, avec un contrat de construction de maison individuelle, dans le cadre de la loi du 19/12/1990, au prix de 195 945 € (Hors branchements et raccordements, papiers peints, peintures, revêtement de sol dans les chambres, qui sont chiffrés dans les travaux qui restent à charge du client. Tarif modifiable sans préavis). Étiquette énergie : A. Différents modèles disponibles pour ce terrain. Assurances et garanties du constructeur comprises (RC professionnelle, décennale, dommage ouvrage).

Contactez l'agence de Angers

02 41 77 17 17

    * Champs obligatoires

    Vos informations sont traitées par HEXAOM et transmises à un conseiller commercial qui vous contactera afin de répondre à votre demande. Les plans et images présentés sur notre site sont la propriété d’HEXAOM et ne peuvent pas être reproduits sans son accord. Pour retrouver notre politique de protection des données personnelles et exercer vos droits conformément à la « loi informatique et liberté » cliquez-ici.