Maison neuve à
Segré (49500) Référence : CP2452128_2

Prix du projet : Maison avec Terrain

prix 342 000 €

  • 5 pièces
  • 5 chambres
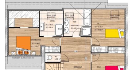
  • Surface maison 125 m2

Maison T5 (125 m²) en vente à Segré
IDÉALEMENT SITUÉE - MAISON 5 PIÈCES NEUVE
Nous vous proposons à vendre, idéalement située dans Segré (49500), cette maison de 5 pièces de 125 m².
Il s'agit d'une maison de 2 niveaux. Son intérieur comporte cinq chambres, une cuisine et deux salles de bains. La maison est neuve.
Le terrain du bien est de 779 m².
La maison se situe dans un quartier attractif. Des établissements scolaires du primaire et du secondaire se trouvent à moins de 10 minutes à pied, tout comme une crèche. Il y a un port de plaisance, des commerces, deux supérettes, trois épiceries, un bureau de poste et deux boucheries-charcuteries dans les environs. Enfin, 2 marchés animent le quartier.
Son prix de vente est de 342 000 €.
Prenez contact avec notre agence (PORCHER Carole : 06-88-98-52-77) pour tout renseignement sur la propriété.

Mentions légales

Terrain proposé par un partenaire foncier selon disponibilités et autorisation de publicité au prix de 73 900 €. Hors droit d'enregistrement et frais de notaire. Terrain + Maison proposés au prix de 342 000 € (Hors branchements et raccordements, papiers peints, peintures, revêtement de sol dans les chambres. Tarif modifiable sans préavis). Etiquette énergie : A. Différents modèles disponibles pour ce terrain. Assurances et garanties du constructeur (RC professionnelle, décennale, dommage ouvrage, garantie de remboursement de l'acompte, livraison à prix et délai convenu) : https://www.maisons-bernard-jambert.com/informations-legales/.

Contactez l'agence de Angers

02 41 77 17 17

    * Champs obligatoires

    Vos informations sont traitées par HEXAOM et transmises à un conseiller commercial qui vous contactera afin de répondre à votre demande. Les plans et images présentés sur notre site sont la propriété d’HEXAOM et ne peuvent pas être reproduits sans son accord. Pour retrouver notre politique de protection des données personnelles et exercer vos droits conformément à la « loi informatique et liberté » cliquez-ici.