Maison neuve à
Segré (49500) Référence : RS2331648_2

Prix du projet : Maison avec Terrain

prix 234 700 €

  • 5 pièces
  • 3 chambres
  • Surface maison 85 m2

Segré : maison de 5 pièces (85 m²) à vendre
MAISON 5 PIÈCES NEUVE
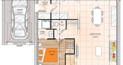
Maisons Bernard Jambert Angers vous propose cette maison de 5 pièces de 85 m² à vendre à Segré (49500). Son intérieur inclut trois chambres, une cuisine et deux salles de bains.
Le terrain de la maison est de 421 m².
Cette maison compte 2 niveaux. Elle est neuve.
Des établissements scolaires de tous niveaux (de la maternelle au lycée) sont implantés à moins de 10 minutes à pied, tout comme une structure d'accueil pour la petite enfance. On trouve un accès à la nationale N162 à 20 km. On trouve un port de plaisance, des commerces, deux supermarchés, quatre boulangeries, un bureau de poste et une épicerie dans les environs. 2 marchés animent le quartier.
Elle est proposée à l'achat pour 234 700 €.
Contactez notre agence (Roman SALAS : 02-41-77-17-17) pour toute question sur le bien. Maisons Bernard Jambert Angers vous accompagne dans toutes vos démarches et à toutes les étapes de l'achat.

Mentions légales

Terrain proposé par un partenaire foncier selon disponibilités et autorisation de publicité au prix de 48 415 €. Hors droit d'enregistrement et frais de notaire. Maison proposée, avec un contrat de construction de maison individuelle, dans le cadre de la loi du 19/12/1990, au prix de 186 285 € (Hors branchements et raccordements, papiers peints, peintures, revêtement de sol dans les chambres, qui sont chiffrés dans les travaux qui restent à charge du client. Tarif modifiable sans préavis). Étiquette énergie : A. Différents modèles disponibles pour ce terrain. Assurances et garanties du constructeur comprises (RC professionnelle, décennale, dommage ouvrage).

Contactez l'agence de Angers

02 41 77 17 17

    * Champs obligatoires

    Vos informations sont traitées par HEXAOM et transmises à un conseiller commercial qui vous contactera afin de répondre à votre demande. Les plans et images présentés sur notre site sont la propriété d’HEXAOM et ne peuvent pas être reproduits sans son accord. Pour retrouver notre politique de protection des données personnelles et exercer vos droits conformément à la « loi informatique et liberté » cliquez-ici.