Maison neuve à
Sarrigné (49800) Référence : RS2336234_1

Prix du projet : Maison avec Terrain

prix 312 500 €

  • 4 pièces
  • 3 chambres
  • Surface maison 86 m2

VENTE d'une maison de 4 pièces (86 m²) à Sarrigné
MAISON 4 PIÈCES NEUVE - PROCHE D'ANGERS
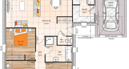
En vente : localisée à 13 km d'Angers, à Sarrigné (49800), nous vous présentons cette maison de 4 pièces de plain-pied de 86 m².
Conçue de plain-pied, elle propose trois chambres, une cuisine et une salle de bains. La maison est neuve.
Le terrain de la propriété s'étend sur 900 m².
Il y a l'École Primaire Publique le Cèdre Bleu à moins de 10 minutes à pied. Côté transports, on trouve les gares La Bohalle et Trélazé à moins de 10 minutes en voiture. Les autoroutes A11, A85 et A87N sont accessibles à moins de 9 km. Il y a une supérette à quelques minutes du bien.
Son prix de vente est de 312 500 €.
Contactez Roman SALAS (02-41-77-17-17) pour plus d'informations sur cette maison.

Mentions légales

Terrain proposé par un partenaire foncier selon disponibilités et autorisation de publicité au prix de 118 500 €. Hors droit d'enregistrement et frais de notaire. Maison proposée, avec un contrat de construction de maison individuelle, dans le cadre de la loi du 19/12/1990, au prix de 194 000 € (Hors branchements et raccordements, papiers peints, peintures, revêtement de sol dans les chambres, qui sont chiffrés dans les travaux qui restent à charge du client. Tarif modifiable sans préavis). Étiquette énergie : A. Différents modèles disponibles pour ce terrain. Assurances et garanties du constructeur comprises (RC professionnelle, décennale, dommage ouvrage).

Contactez l'agence de Angers

02 41 77 17 17

    * Champs obligatoires

    Vos informations sont traitées par HEXAOM et transmises à un conseiller commercial qui vous contactera afin de répondre à votre demande. Les plans et images présentés sur notre site sont la propriété d’HEXAOM et ne peuvent pas être reproduits sans son accord. Pour retrouver notre politique de protection des données personnelles et exercer vos droits conformément à la « loi informatique et liberté » cliquez-ici.