Maison neuve à
Saint-Rémy-en-Mauges (49110) Référence : MJ2446543_3

Prix du projet : Maison avec Terrain

prix 267 500 €

  • 5 pièces
  • 3 chambres
  • Surface maison 105 m2

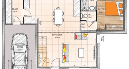
VENTE : maison de 5 pièces (105 m²) à Saint-Rémy-en-Mauges
EMPLACEMENT PRIVILÉGIÉ - MAISON 5 PIÈCES NEUVE
À vendre à quelques kilomètres de Cholet, Maisons Bernard Jambert Angers vous propose, bénéficiant d'un emplacement d'exception dans Saint-Rémy-en-Mauges (49110), cette maison de 5 pièces de 105 m² et de 418 m² de terrain.
C'est une maison de 2 niveaux. Son intérieur dispose de trois chambres, d'une cuisine et de deux salles de bains. La maison est neuve.
Cette maison se situe dans un secteur recherché. On trouve l'École Primaire Privée Saint Joseph à moins de 10 minutes à pied. Il y a un tennis et une boucherie-charcuterie à quelques minutes à peine.
Elle est proposée à l'achat pour 267 500 €.
Contactez notre agence (JANNEAU Mathieu : 06-01-35-24-98) pour toute information sur la maison. Maisons Bernard Jambert Angers vous accompagne à toutes les étapes de votre projet et dans tous vos projets immobiliers.

Mentions légales

Terrain proposé par un partenaire foncier selon disponibilités et autorisation de publicité au prix de 49 200 €. Hors droit d'enregistrement et frais de notaire. Terrain + Maison proposés au prix de 267 500 € (Hors branchements et raccordements, papiers peints, peintures, revêtement de sol dans les chambres. Tarif modifiable sans préavis). Etiquette énergie : A. Différents modèles disponibles pour ce terrain. Assurances et garanties du constructeur (RC professionnelle, décennale, dommage ouvrage, garantie de remboursement de l'acompte, livraison à prix et délai convenu) : https://www.maisons-bernard-jambert.com/informations-legales/.

Contactez l'agence de Angers

02 41 77 17 17

    * Champs obligatoires

    Vos informations sont traitées par HEXAOM et transmises à un conseiller commercial qui vous contactera afin de répondre à votre demande. Les plans et images présentés sur notre site sont la propriété d’HEXAOM et ne peuvent pas être reproduits sans son accord. Pour retrouver notre politique de protection des données personnelles et exercer vos droits conformément à la « loi informatique et liberté » cliquez-ici.