Maison neuve à
Saint-Pierre-Montlimart (49110) Référence : MJ2350614_3

Prix du projet : Maison avec Terrain

prix 225 500 €

  • 5 pièces
  • 2 chambres
  • Surface maison 82 m2

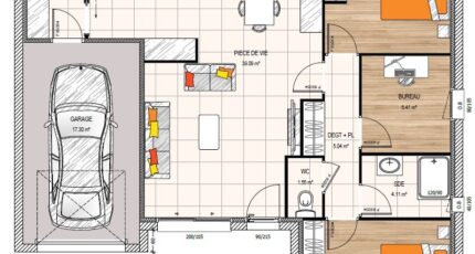
Saint-Pierre-Montlimart : maison F5 (82 m²) en vente
IDÉALEMENT SITUÉE - MAISON 5 PIÈCES NEUVE
À vendre : localisée à 29 km de Cholet, ayez le coup de coeur pour cette maison de 5 pièces de plain-pied de 82 m² et de 471 m² de terrain, idéalement située dans Saint-Pierre-Montlimart (49110). Son intérieur comporte deux chambres, une cuisine et une salle de bains.
Cette maison est neuve.
La maison se situe dans un secteur recherché. L'École Primaire Publique les Sables d'Or, l'École Primaire Privée la Source et le Collège Privé Frédéric Ozanam sont implantés à moins de 10 minutes à pied. L'autoroute A11 et la nationale N249 sont accessibles à moins de 20 km. Il y a un tennis, des commerces, deux boulangeries, un supermarché et un bureau de poste dans les environs.
Elle est à vendre pour la somme de 225 500 €.
Contactez notre agence (Mathieu JANNEAU : 06-01-35-24-98) pour obtenir de plus amples renseignements sur la maison, sur les modalités de vente ou sur les démarches à suivre. Maisons Bernard Jambert Angers vous accompagne dans tous vos projets immobiliers et dans toutes vos démarches.

Mentions légales

Terrain proposé par un partenaire foncier selon disponibilités et autorisation de publicité au prix de 45 911 €. Hors droit d'enregistrement et frais de notaire. Maison proposée, avec un contrat de construction de maison individuelle, dans le cadre de la loi du 19/12/1990, au prix de 179 589 € (Hors branchements et raccordements, papiers peints, peintures, revêtement de sol dans les chambres, qui sont chiffrés dans les travaux qui restent à charge du client. Tarif modifiable sans préavis). Étiquette énergie : A. Différents modèles disponibles pour ce terrain. Assurances et garanties du constructeur comprises (RC professionnelle, décennale, dommage ouvrage).

Contactez l'agence de Angers

02 41 77 17 17

    * Champs obligatoires

    Vos informations sont traitées par HEXAOM et transmises à un conseiller commercial qui vous contactera afin de répondre à votre demande. Les plans et images présentés sur notre site sont la propriété d’HEXAOM et ne peuvent pas être reproduits sans son accord. Pour retrouver notre politique de protection des données personnelles et exercer vos droits conformément à la « loi informatique et liberté » cliquez-ici.