Maison neuve à
Saint-Melaine-sur-Aubance (49610) Référence : RS2451579_3

Prix du projet : Maison avec Terrain

prix 271 300 €

  • 5 pièces
  • 3 chambres
  • Surface maison 85 m2

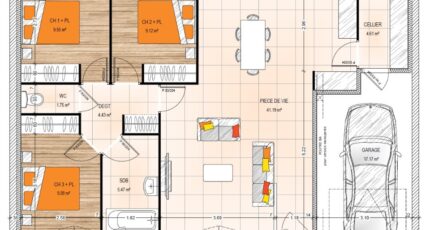
VENTE : maison de 5 pièces (85 m²) à Saint-Melaine-sur-Aubance
MAISON 5 PIÈCES NEUVE - PROCHE D'ANGERS
En vente à 12 km d'Angers, Maisons Bernard Jambert Angers vous propose cette maison de 5 pièces de plain-pied de 85 m² à Saint-Melaine-sur-Aubance (49610). Conçue de plain-pied, elle comporte trois chambres, une cuisine et une salle de bains.
Le terrain du bien s'étend sur 681 m².
Cette maison est neuve.
On trouve l'École Primaire Publique Armand Brousse à moins de 10 minutes à pied. Niveau transports, il y a la gare Trélazé à moins de 10 minutes en voiture. On trouve une épicerie à quelques minutes de la maison.
Il est proposé à l'achat pour 271 300 €.
N'hésitez pas à prendre contact avec Roman SALAS (tél : 02-41-77-17-17) pour toute question sur la maison, sur les modalités de vente ou sur les démarches à suivre. Concrétisez vos projets immobiliers avec Maisons Bernard Jambert Angers.

Mentions légales

Terrain proposé par un partenaire foncier selon disponibilités et autorisation de publicité au prix de 105 555 €. Hors droit d'enregistrement et frais de notaire. Terrain + Maison proposés au prix de 271 300 € (Hors branchements et raccordements, papiers peints, peintures, revêtement de sol dans les chambres. Tarif modifiable sans préavis). Etiquette énergie : A. Différents modèles disponibles pour ce terrain. Assurances et garanties du constructeur (RC professionnelle, décennale, dommage ouvrage, garantie de remboursement de l'acompte, livraison à prix et délai convenu) : https://www.maisons-bernard-jambert.com/informations-legales/.

Contactez l'agence de Angers

02 41 77 17 17

    * Champs obligatoires

    Vos informations sont traitées par HEXAOM et transmises à un conseiller commercial qui vous contactera afin de répondre à votre demande. Les plans et images présentés sur notre site sont la propriété d’HEXAOM et ne peuvent pas être reproduits sans son accord. Pour retrouver notre politique de protection des données personnelles et exercer vos droits conformément à la « loi informatique et liberté » cliquez-ici.