Maison neuve à
Saint-Melaine-sur-Aubance (49610) Référence : CP2347496_3

Prix du projet : Maison avec Terrain

prix 299 800 €

  • 6 pièces
  • 4 chambres
  • Surface maison 121 m2

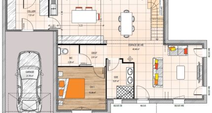
VENTE : maison T6 (121 m²) à Saint-Melaine-sur-Aubance
EMPLACEMENT PRIVILÉGIÉ - MAISON 6 PIÈCES NEUVE
À vendre à deux pas d'Angers, notre agence Maisons Bernard Jambert Angers est heureuse de vous proposer cette maison de 6 pièces de 121 m² bénéficiant d'un emplacement d'exception dans Saint-Melaine-sur-Aubance (49610).
Cette maison possède 2 niveaux. Elle dispose de quatre chambres, d'une cuisine et de deux salles de bains. Cette maison est neuve.
Le terrain du bien s'étend sur 324 m².
Cette maison se situe dans un quartier attractif. On trouve l'École Primaire Publique Armand Brousse à moins de 10 minutes à pied. Niveau transports, il y a la gare Trélazé à moins de 10 minutes en voiture. Les autoroutes A87 et A87N sont accessibles à moins de 4 km. On trouve un commerce et une épicerie à proximité de la maison.
Elle est proposée à l'achat pour 299 800 €.
Contactez Carole PORCHER (06-88-98-52-77) pour toute information sur la maison, sur les modalités de vente ou sur les démarches à suivre.

Mentions légales

Terrain proposé par un partenaire foncier selon disponibilités et autorisation de publicité au prix de 50 220 €. Hors droit d'enregistrement et frais de notaire. Maison proposée, avec un contrat de construction de maison individuelle, dans le cadre de la loi du 19/12/1990, au prix de 249 580 € (Hors branchements et raccordements, papiers peints, peintures, revêtement de sol dans les chambres, qui sont chiffrés dans les travaux qui restent à charge du client. Tarif modifiable sans préavis). Étiquette énergie : A. Différents modèles disponibles pour ce terrain. Assurances et garanties du constructeur comprises (RC professionnelle, décennale, dommage ouvrage).

Contactez l'agence de Angers

02 41 77 17 17

    * Champs obligatoires

    Vos informations sont traitées par HEXAOM et transmises à un conseiller commercial qui vous contactera afin de répondre à votre demande. Les plans et images présentés sur notre site sont la propriété d’HEXAOM et ne peuvent pas être reproduits sans son accord. Pour retrouver notre politique de protection des données personnelles et exercer vos droits conformément à la « loi informatique et liberté » cliquez-ici.