Maison neuve à
Saint-Laurent-des-Autels (49270) Référence : MJ2440288_1

Prix du projet : Maison avec Terrain

prix 242 500 €

  • 5 pièces
  • 3 chambres
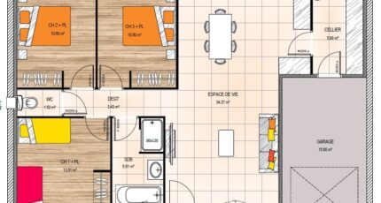
  • Surface maison 80 m2

VENTE : maison T5 (80 m²) à Saint-Laurent-des-Autels
IDÉALEMENT SITUÉE - VUE SANS VIS-À-VIS
À vendre à deux pas de Nantes, votre agence Maisons Bernard Jambert Angers est heureuse de vous présenter cette maison de 5 pièces de 80 m² sans vis-à-vis idéalement située dans Saint-Laurent-des-Autels (49270). Son intérieur offre trois chambres, une cuisine et une salle de bains.
Le terrain du bien est de 500 m².
C'est une maison de plain-pied. Elle est neuve.
Ce bien se situe dans un quartier prisé. Niveau transports, il y a les gares Ancenis et Oudon à moins de 10 minutes en voiture. On trouve un tennis, une bibliothèque et une boulangerie dans les environs.
Il est à vendre pour la somme de 242 500 €.
Prenez contact avec notre constructeur (JANNEAU Mathieu : 06-01-35-24-98) pour toute question sur la maison.

Mentions légales

Terrain proposé par un partenaire foncier selon disponibilités et autorisation de publicité au prix de 79 500 €. Hors droit d'enregistrement et frais de notaire. Terrain + Maison proposés au prix de 242 500 € (Hors branchements et raccordements, papiers peints, peintures, revêtement de sol dans les chambres. Tarif modifiable sans préavis). Etiquette énergie : A. Différents modèles disponibles pour ce terrain. Assurances et garanties du constructeur (RC professionnelle, décennale, dommage ouvrage, garantie de remboursement de l'acompte, livraison à prix et délai convenu) : https://www.maisons-bernard-jambert.com/informations-legales/.

Contactez l'agence de Angers

02 41 77 17 17

    * Champs obligatoires

    Vos informations sont traitées par HEXAOM et transmises à un conseiller commercial qui vous contactera afin de répondre à votre demande. Les plans et images présentés sur notre site sont la propriété d’HEXAOM et ne peuvent pas être reproduits sans son accord. Pour retrouver notre politique de protection des données personnelles et exercer vos droits conformément à la « loi informatique et liberté » cliquez-ici.