Maison neuve à
Saint-Lambert-la-Potherie (49070) Référence : RS2372954_1

Prix du projet : Maison avec Terrain

prix 297 500 €

  • 5 pièces
  • 3 chambres
  • Surface maison 85 m2

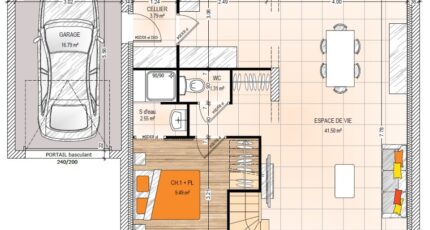
VENTE : maison F5 (85 m²) à Saint-Lambert-la-Potherie
PROCHE D'ANGERS - MAISON 5 PIÈCES NEUVE
En vente : à quelques kilomètres d'Angers, nous sommes ravis de vous présenter à Saint-Lambert-la-Potherie (49070), cette maison de 5 pièces de 85 m². Son intérieur inclut trois chambres, une cuisine et deux salles de bains.
Le terrain du bien s'étend sur 452 m².
Il s'agit d'une maison de 2 niveaux. Elle est neuve.
On trouve tous les types d'écoles (de la maternelle au lycée) à moins de 10 minutes en voiture, 23 crèches à moins de 10 minutes à pied, tout comme six établissements du supérieur pour le supérieur. Niveau transports en commun, il y a la gare Angers Saint-Laud à moins de 10 minutes en voiture. On trouve un accès à l'autoroute A11 à 2 km. On trouve des tennis, des bassins de natation, des bibliothèques, deux bowlings, deux ports de plaisance, des boulangeries, des commerces, des supermarchés, des supérettes et des boucheries-charcuteries à quelques minutes du logement. Ne manquez pas le marché Place du champ de Foire chaque jeudi matin.
Elle est à vendre pour la somme de 297 500 €.
Contactez notre agence (Roman SALAS : 02-41-77-17-17) pour tout renseignement sur la maison ou sur les démarches à suivre. Maisons Bernard Jambert Angers vous accompagne à toutes les étapes de votre projet et dans tous vos projets immobiliers.

Mentions légales

Terrain proposé par un partenaire foncier selon disponibilités et autorisation de publicité au prix de 93 000 €. Hors droit d'enregistrement et frais de notaire. Terrain + Maison proposés au prix de 204 500 € (Hors branchements et raccordements, papiers peints, peintures, revêtement de sol dans les chambres. Tarif modifiable sans préavis). Etiquette énergie : A. Différents modèles disponibles pour ce terrain. Assurances et garanties du constructeur (RC professionnelle, décennale, dommage ouvrage, garantie de remboursement de l'acompte, livraison à prix et délai convenu) : https://www.maisons-bernard-jambert.com/informations-legales/.

Contactez l'agence de Angers

02 41 77 17 17

    * Champs obligatoires

    Vos informations sont traitées par HEXAOM et transmises à un conseiller commercial qui vous contactera afin de répondre à votre demande. Les plans et images présentés sur notre site sont la propriété d’HEXAOM et ne peuvent pas être reproduits sans son accord. Pour retrouver notre politique de protection des données personnelles et exercer vos droits conformément à la « loi informatique et liberté » cliquez-ici.