Maison neuve à
Saint-Jean-des-Mauvrets (49320) Référence : RS2358611_1

Prix du projet : Maison avec Terrain

prix 258 900 €

  • 5 pièces
  • 3 chambres
  • Surface maison 85 m2

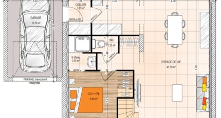
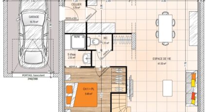
Saint-Jean-des-Mauvrets : maison F5 (85 m²) en vente
PROCHE D'ANGERS - MAISON 5 PIÈCES NEUVE
En vente : à quelques kilomètres d'Angers, à Saint-Jean-des-Mauvrets (49320), Maisons Bernard Jambert Angers vous propose cette maison de 5 pièces de 85 m².
Cette maison comporte 2 niveaux. Elle compte trois chambres, une cuisine et deux salles de bains. La maison est neuve.
Le terrain du bien s'étend sur 450 m².
Il y a l'École Primaire Publique les Glycines et l'École Primaire Privée Arc En Ciel à moins de 10 minutes à pied. Niveau transports en commun, on trouve quatre gares à moins de 10 minutes en voiture. Les autoroutes A87N et A87 sont accessibles à moins de 6 km. Il y a un tennis et une boulangerie dans les environs.
Elle est proposée à l'achat pour 258 900 €.
N'hésitez pas à prendre contact avec notre agence (Roman SALAS : 02-41-77-17-17) pour toute question sur la maison ou sur les modalités de vente.

Mentions légales

Terrain proposé par un partenaire foncier selon disponibilités et autorisation de publicité au prix de 89 900 €. Hors droit d'enregistrement et frais de notaire. Terrain + Maison proposés au prix de 169 000 € (Hors branchements et raccordements, papiers peints, peintures, revêtement de sol dans les chambres. Tarif modifiable sans préavis). Etiquette énergie : A. Différents modèles disponibles pour ce terrain. Assurances et garanties du constructeur (RC professionnelle, décennale, dommage ouvrage, garantie de remboursement de l'acompte, livraison à prix et délai convenu) : https://www.maisons-bernard-jambert.com/informations-legales/.

Contactez l'agence de Angers

02 41 77 17 17

    * Champs obligatoires

    Vos informations sont traitées par HEXAOM et transmises à un conseiller commercial qui vous contactera afin de répondre à votre demande. Les plans et images présentés sur notre site sont la propriété d’HEXAOM et ne peuvent pas être reproduits sans son accord. Pour retrouver notre politique de protection des données personnelles et exercer vos droits conformément à la « loi informatique et liberté » cliquez-ici.