Maison neuve à
Saint-Jean-de-Linières (49070) Référence : RS2330902_3

Prix du projet : Maison avec Terrain

prix 334 100 €

  • 4 pièces
  • 2 chambres
  • Surface maison 110 m2

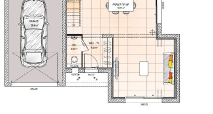
VENTE : maison T4 (110 m²) à Saint-Jean-de-Linières
PROCHE D'ANGERS - MAISON 4 PIÈCES NEUVE
En vente : à 9 km d'Angers, nous vous présentons cette maison de 4 pièces de 110 m² et de 435 m² de terrain à Saint-Jean-de-Linières (49070).
Il s'agit d'une maison de 2 niveaux. Elle est composée de deux chambres, d'une cuisine et d'une salle de bains. La maison est neuve.
Un balcon est présent pour un gain d'espace bienvenu.
Il y a l'École Primaire Publique Claude Debussy à moins de 10 minutes à pied et deux crèches. Niveau transports en commun, on trouve quatre gares à moins de 10 minutes en voiture. On trouve un accès à l'autoroute A11 à 3 km. Il y a un tennis, une boulangerie et trois commerces dans les environs.
Elle est à vendre pour la somme de 334 100 €.
Prenez contact avec notre agence (SALAS Roman : 02-41-77-17-17) pour toute information sur cette maison.

Mentions légales

Terrain proposé par un partenaire foncier selon disponibilités et autorisation de publicité au prix de 99 700 €. Hors droit d'enregistrement et frais de notaire. Maison proposée, avec un contrat de construction de maison individuelle, dans le cadre de la loi du 19/12/1990, au prix de 234 400 € (Hors branchements et raccordements, papiers peints, peintures, revêtement de sol dans les chambres, qui sont chiffrés dans les travaux qui restent à charge du client. Tarif modifiable sans préavis). Étiquette énergie : A. Différents modèles disponibles pour ce terrain. Assurances et garanties du constructeur comprises (RC professionnelle, décennale, dommage ouvrage).

Contactez l'agence de Angers

02 41 77 17 17

    * Champs obligatoires

    Vos informations sont traitées par HEXAOM et transmises à un conseiller commercial qui vous contactera afin de répondre à votre demande. Les plans et images présentés sur notre site sont la propriété d’HEXAOM et ne peuvent pas être reproduits sans son accord. Pour retrouver notre politique de protection des données personnelles et exercer vos droits conformément à la « loi informatique et liberté » cliquez-ici.