Maison neuve à
Vihiers (49310) Référence : MJ2350595_3

Prix du projet : Maison avec Terrain

prix 295 500 €

  • 7 pièces
  • 5 chambres
  • Surface maison 120 m2

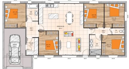
VENTE d'une maison F7 (120 m²) à Saint-Hilaire-du-Bois
IDÉALEMENT SITUÉE - MAISON 7 PIÈCES NEUVE
En vente : idéalement située dans Saint-Hilaire-du-Bois (49310), nous vous proposons cette maison de 7 pièces de plain-pied de 120 m². Son intérieur offre cinq chambres, une cuisine et deux salles de bains.
Le terrain du bien est de 687 m².
Cette maison est neuve.
La maison se trouve dans un secteur convoité. Il y a l'École Primaire Privée Notre Dame à moins de 10 minutes à pied. L'autoroute A87 est accessible à 18 km.
Son prix de vente est de 295 500 €.
Prenez contact avec notre agence (Mathieu JANNEAU : 06-01-35-24-98) pour plus d'informations sur la maison, sur les démarches à suivre ou sur les modalités de vente. Maisons Bernard Jambert Angers vous accompagne dans tous vos projets immobiliers et à toutes les étapes de votre projet.

Mentions légales

Terrain proposé par un partenaire foncier selon disponibilités et autorisation de publicité au prix de 34 162 €. Hors droit d'enregistrement et frais de notaire. Maison proposée, avec un contrat de construction de maison individuelle, dans le cadre de la loi du 19/12/1990, au prix de 261 338 € (Hors branchements et raccordements, papiers peints, peintures, revêtement de sol dans les chambres, qui sont chiffrés dans les travaux qui restent à charge du client. Tarif modifiable sans préavis). Étiquette énergie : A. Différents modèles disponibles pour ce terrain. Assurances et garanties du constructeur comprises (RC professionnelle, décennale, dommage ouvrage).

Contactez l'agence de Angers

02 41 77 17 17

    * Champs obligatoires

    Vos informations sont traitées par HEXAOM et transmises à un conseiller commercial qui vous contactera afin de répondre à votre demande. Les plans et images présentés sur notre site sont la propriété d’HEXAOM et ne peuvent pas être reproduits sans son accord. Pour retrouver notre politique de protection des données personnelles et exercer vos droits conformément à la « loi informatique et liberté » cliquez-ici.