Maison neuve à
Saint-Georges-sur-Loire (49170) Référence : RS2340278_4

Prix du projet : Maison avec Terrain

prix 243 500 €

  • 5 pièces
  • 3 chambres
  • Surface maison 85 m2

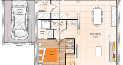
VENTE : maison F5 (85 m²) à Saint-Georges-sur-Loire
PROCHE D'ANGERS - MAISON 5 PIÈCES NEUVE
À vendre : localisée à 17 km d'Angers, notre agence Maisons Bernard Jambert Angers est ravie de vous proposer cette maison de 5 pièces de 85 m² à Saint-Georges-sur-Loire (49170).
C'est une maison de 2 niveaux. Son intérieur est composé de trois chambres, d'une cuisine et de deux salles de bains. La maison est neuve.
Le terrain du bien est de 430 m².
Il y a l'École Primaire Privée l'Abbaye, l'École Maternelle Publique Jacques Prévert, l'École Élémentaire Publique Jean-Baptiste Lully et le Collège Jean Racine à moins de 10 minutes à pied et une structure d'accueil pour les enfants en bas âge. Niveau transports, on trouve quatre gares à moins de 10 minutes en voiture. On trouve un accès à l'autoroute A11 à 5 km. Il y a un tennis, une bibliothèque, un commerce, une boulangerie, deux supermarchés, un bureau de poste et une boucherie-charcuterie dans les environs.
Son prix de vente est de 243 500 €.
Prenez contact avec Roman SALAS (tél : 02-41-77-17-17) pour tout renseignement sur la propriété. Maisons Bernard Jambert Angers est là pour vous accompagner dans tous vos projets immobiliers.

Mentions légales

Terrain proposé par un partenaire foncier selon disponibilités et autorisation de publicité au prix de 81 000 €. Hors droit d'enregistrement et frais de notaire. Maison proposée, avec un contrat de construction de maison individuelle, dans le cadre de la loi du 19/12/1990, au prix de 162 500 € (Hors branchements et raccordements, papiers peints, peintures, revêtement de sol dans les chambres, qui sont chiffrés dans les travaux qui restent à charge du client. Tarif modifiable sans préavis). Étiquette énergie : A. Différents modèles disponibles pour ce terrain. Assurances et garanties du constructeur comprises (RC professionnelle, décennale, dommage ouvrage).

Contactez l'agence de Angers

02 41 77 17 17

    * Champs obligatoires

    Vos informations sont traitées par HEXAOM et transmises à un conseiller commercial qui vous contactera afin de répondre à votre demande. Les plans et images présentés sur notre site sont la propriété d’HEXAOM et ne peuvent pas être reproduits sans son accord. Pour retrouver notre politique de protection des données personnelles et exercer vos droits conformément à la « loi informatique et liberté » cliquez-ici.