Maison neuve à
Saint-Georges-sur-Loire (49170) Référence : RS2340278_2

Prix du projet : Maison avec Terrain

prix 390 100 €

  • 6 pièces
  • 5 chambres
  • Surface maison 147 m2

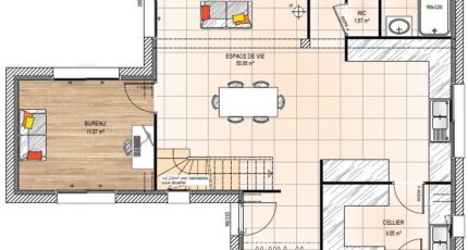
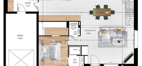
Saint-Georges-sur-Loire : maison F6 (147 m²) en vente
PROCHE D'ANGERS - MAISON 6 PIÈCES NEUVE
En vente : à quelques kilomètres d'Angers, votre agence Maisons Bernard Jambert Angers est heureuse de vous proposer cette maison de 6 pièces de 147 m² et de 430 m² de terrain à Saint-Georges-sur-Loire (49170). Elle propose cinq chambres, une cuisine et deux salles de bains.
C'est une maison de 2 niveaux. Elle est neuve.
Il y a l'École Primaire Privée l'Abbaye, l'École Maternelle Publique Jacques Prévert, l'École Élémentaire Publique Jean-Baptiste Lully et le Collège Jean Racine à moins de 10 minutes à pied et une structure d'accueil pour la petite enfance. Niveau transports en commun, on trouve quatre gares à moins de 10 minutes en voiture. L'autoroute A11 est accessible à 5 km. Il y a un tennis, une bibliothèque, un commerce, une boulangerie, deux supermarchés, un bureau de poste et une boucherie-charcuterie à quelques minutes.
Elle est proposée à l'achat pour 390 100 €.
N'hésitez pas à prendre contact avec notre agence (SALAS Roman : 02-41-77-17-17) pour obtenir de plus amples renseignements sur cette maison ou sur les démarches à suivre. Faites de vos projets immobiliers une réalité avec Maisons Bernard Jambert Angers.

Mentions légales

Terrain proposé par un partenaire foncier selon disponibilités et autorisation de publicité au prix de 81 000 €. Hors droit d'enregistrement et frais de notaire. Maison proposée, avec un contrat de construction de maison individuelle, dans le cadre de la loi du 19/12/1990, au prix de 309 100 € (Hors branchements et raccordements, papiers peints, peintures, revêtement de sol dans les chambres, qui sont chiffrés dans les travaux qui restent à charge du client. Tarif modifiable sans préavis). Étiquette énergie : A. Différents modèles disponibles pour ce terrain. Assurances et garanties du constructeur comprises (RC professionnelle, décennale, dommage ouvrage).

Contactez l'agence de Angers

02 41 77 17 17

    * Champs obligatoires

    Vos informations sont traitées par HEXAOM et transmises à un conseiller commercial qui vous contactera afin de répondre à votre demande. Les plans et images présentés sur notre site sont la propriété d’HEXAOM et ne peuvent pas être reproduits sans son accord. Pour retrouver notre politique de protection des données personnelles et exercer vos droits conformément à la « loi informatique et liberté » cliquez-ici.