Maison neuve à
Saint-Georges-sur-Loire (49170) Référence : RS2312511_2

Prix du projet : Maison avec Terrain

prix 278 500 €

  • 5 pièces
  • 3 chambres
  • Surface maison 85 m2

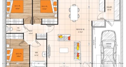
Saint-Georges-sur-Loire : maison F5 (85 m²) en vente
MAISON 5 PIÈCES NEUVE - PROCHE D'ANGERS
En vente : située à deux pas d'Angers, notre agence Maisons Bernard Jambert Angers est ravie de vous présenter cette maison de 5 pièces de plain-pied de 85 m² à Saint-Georges-sur-Loire (49170). Conçue de plain-pied, elle propose trois chambres, une cuisine et une salle de bains.
Le terrain de la maison s'étend sur 501 m².
Cette maison est neuve.
L'École Primaire Privée l'Abbaye, l'École Maternelle Publique Jacques Prévert, l'École Élémentaire Publique Jean-Baptiste Lully et le Collège Jean Racine sont implantés à moins de 10 minutes à pied, tout comme une crèche. Niveau transports en commun, il y a quatre gares à moins de 10 minutes en voiture. On trouve un accès à l'autoroute A11 à 5 km. On trouve un tennis, une bibliothèque, un commerce, une boulangerie, deux supermarchés, un bureau de poste et une boucherie-charcuterie à proximité.
Elle est à vendre pour la somme de 278 500 €.
Contactez notre constructeur (SALAS Roman : 02-41-77-17-17) pour plus d'informations sur cette maison.

Mentions légales

Terrain proposé par un partenaire foncier selon disponibilités et autorisation de publicité au prix de 80 500 €. Hors droit d'enregistrement et frais de notaire. Maison proposée, avec un contrat de construction de maison individuelle, dans le cadre de la loi du 19/12/1990, au prix de 198 000 € (Hors branchements et raccordements, papiers peints, peintures, revêtement de sol dans les chambres, qui sont chiffrés dans les travaux qui restent à charge du client. Tarif modifiable sans préavis). Étiquette énergie : A. Différents modèles disponibles pour ce terrain. Assurances et garanties du constructeur comprises (RC professionnelle, décennale, dommage ouvrage).

Contactez l'agence de Angers

02 41 77 17 17

    * Champs obligatoires

    Vos informations sont traitées par HEXAOM et transmises à un conseiller commercial qui vous contactera afin de répondre à votre demande. Les plans et images présentés sur notre site sont la propriété d’HEXAOM et ne peuvent pas être reproduits sans son accord. Pour retrouver notre politique de protection des données personnelles et exercer vos droits conformément à la « loi informatique et liberté » cliquez-ici.