Maison neuve à
Saint-Georges-des-Gardes (49120) Référence : MJ2446559_2

Prix du projet : Maison avec Terrain

prix 225 600 €

  • 5 pièces
  • 3 chambres
  • Surface maison 80 m2

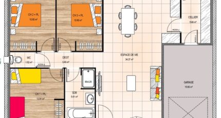
Maison F5 (80 m²) en vente à Saint-Georges-des-Gardes
IDÉALEMENT SITUÉE - MAISON 5 PIÈCES NEUVE
En vente à deux pas de Cholet, idéalement située dans Saint-Georges-des-Gardes (49120), nous sommes ravis de vous présenter cette maison de 5 pièces de plain-pied de 80 m². Elle comporte trois chambres, une cuisine et une salle de bains.
Le terrain de cette maison s'étend sur 500 m².
La maison est neuve.
La maison est située dans un secteur recherché. On trouve l'École Primaire Privée Notre Dame de la Colline à moins de 10 minutes à pied et une structure d'accueil pour les enfants en bas âge. Côté transports, il y a la gare Chemillé-en-Anjou à moins de 10 minutes en voiture. On trouve un tennis à proximité.
Elle est proposée à l'achat pour 225 600 €.
Contactez notre agence (JANNEAU Mathieu : 06-01-35-24-98) pour obtenir de plus amples informations sur la maison ou sur les démarches à suivre. Maisons Bernard Jambert Angers est là pour vous accompagner dans tous vos projets immobiliers.

Mentions légales

Terrain proposé par un partenaire foncier selon disponibilités et autorisation de publicité au prix de 55 000 €. Hors droit d'enregistrement et frais de notaire. Terrain + Maison proposés au prix de 225 600 € (Hors branchements et raccordements, papiers peints, peintures, revêtement de sol dans les chambres. Tarif modifiable sans préavis). Etiquette énergie : A. Différents modèles disponibles pour ce terrain. Assurances et garanties du constructeur (RC professionnelle, décennale, dommage ouvrage, garantie de remboursement de l'acompte, livraison à prix et délai convenu) : https://www.maisons-bernard-jambert.com/informations-legales/.

Contactez l'agence de Angers

02 41 77 17 17

    * Champs obligatoires

    Vos informations sont traitées par HEXAOM et transmises à un conseiller commercial qui vous contactera afin de répondre à votre demande. Les plans et images présentés sur notre site sont la propriété d’HEXAOM et ne peuvent pas être reproduits sans son accord. Pour retrouver notre politique de protection des données personnelles et exercer vos droits conformément à la « loi informatique et liberté » cliquez-ici.