Maison neuve à
Saint-Barthélemy-d'Anjou (49124) Référence : CP2427444_1

Prix du projet : Maison avec Terrain

prix 445 900 €

  • 6 pièces
  • 4 chambres
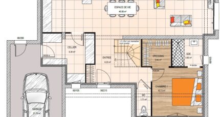
  • Surface maison 141 m2

VENTE d'une maison T6 (141 m²) à Saint-Barthélemy-d'Anjou
QUARTIER RECHERCHÉ - MAISON 6 PIÈCES NEUVE
À vendre : à 6 km d'Angers, notre agence Maisons Bernard Jambert Angers est heureuse de vous proposer cette maison de 6 pièces de 141 m² située dans un secteur convoité de Saint-Barthélemy-d'Anjou (49124). Elle offre quatre chambres, une cuisine et deux salles de bains.
Le terrain du bien s'étend sur 370 m².
Cette maison possède 2 niveaux. Elle est neuve.
Cette maison se situe dans un quartier recherché. Plusieurs établissements scolaires (maternelle, élémentaire, primaire et collège) y sont implantés. Côté transports en commun, on trouve cinq gares à moins de 10 minutes en voiture. Les autoroutes A87N et A11 sont accessibles à moins de 4 km. Il y a un commerce dans les environs.
Elle est proposée à l'achat pour 445 900 €.
N'hésitez pas à prendre contact avec Carole PORCHER (06-88-98-52-77) pour toute information sur la maison et sur les démarches à suivre.

Mentions légales

Terrain proposé par un partenaire foncier selon disponibilités et autorisation de publicité au prix de 142 000 €. Hors droit d'enregistrement et frais de notaire. Terrain + Maison proposés au prix de 445 900 € (Hors branchements et raccordements, papiers peints, peintures, revêtement de sol dans les chambres. Tarif modifiable sans préavis). Etiquette énergie : A. Différents modèles disponibles pour ce terrain. Assurances et garanties du constructeur (RC professionnelle, décennale, dommage ouvrage, garantie de remboursement de l'acompte, livraison à prix et délai convenu) : https://www.maisons-bernard-jambert.com/informations-legales/.

Contactez l'agence de Angers

02 41 77 17 17

    * Champs obligatoires

    Vos informations sont traitées par HEXAOM et transmises à un conseiller commercial qui vous contactera afin de répondre à votre demande. Les plans et images présentés sur notre site sont la propriété d’HEXAOM et ne peuvent pas être reproduits sans son accord. Pour retrouver notre politique de protection des données personnelles et exercer vos droits conformément à la « loi informatique et liberté » cliquez-ici.