Maison neuve à
Saint-Barthélemy-d'Anjou (49124) Référence : RS2287685_1

Prix du projet : Maison avec Terrain

prix 353 200 €

  • 5 pièces
  • 3 chambres
  • Surface maison 100 m2

Saint-Barthélemy-d'Anjou : maison T5 (100 m²) en vente
MAISON 5 PIÈCES NEUVE - PROCHE D'ANGERS
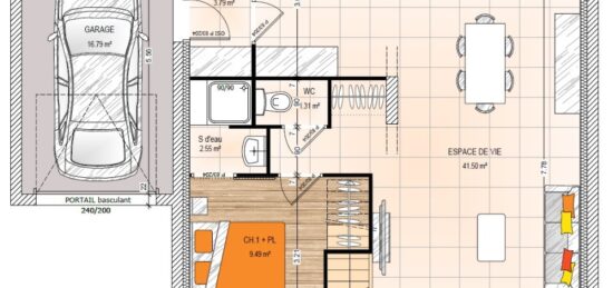
En vente : à deux pas d'Angers, notre agence Maisons Bernard Jambert Angers est heureuse de vous présenter cette maison de 5 pièces de plain-pied de 100 m² à Saint-Barthélemy-d'Anjou (49124).
Son intérieur offre trois chambres, une cuisine et une salle de bains. Cette maison est neuve.
Le terrain du bien est de 481 m².
Il y a plusieurs établissements scolaires (maternelle, élémentaire, primaire et collège) dans la commune. Niveau transports en commun, on trouve cinq gares à moins de 10 minutes en voiture. Les autoroutes A87N et A11 sont accessibles à moins de 4 km. Il y a un commerce à quelques minutes à peine.
Son prix de vente est de 353 200 €.
Contactez notre constructeur (SALAS Roman : 02-41-77-17-17) pour plus de renseignements sur la maison et sur les démarches à suivre. Maisons Bernard Jambert Angers est là pour vous accompagner à toutes les étapes de votre projet.

Mentions légales

Terrain proposé par un partenaire foncier selon disponibilités et autorisation de publicité au prix de 143 400 €. Hors droit d'enregistrement et frais de notaire. Terrain + Maison proposés au prix de 209 800 € (Hors branchements et raccordements, papiers peints, peintures, revêtement de sol dans les chambres. Tarif modifiable sans préavis). Etiquette énergie : A. Différents modèles disponibles pour ce terrain. Assurances et garanties du constructeur (RC professionnelle, décennale, dommage ouvrage, garantie de remboursement de l'acompte, livraison à prix et délai convenu) : https://www.maisons-bernard-jambert.com/informations-legales/.

Contactez l'agence de Angers

02 41 77 17 17

    * Champs obligatoires

    Vos informations sont traitées par HEXAOM et transmises à un conseiller commercial qui vous contactera afin de répondre à votre demande. Les plans et images présentés sur notre site sont la propriété d’HEXAOM et ne peuvent pas être reproduits sans son accord. Pour retrouver notre politique de protection des données personnelles et exercer vos droits conformément à la « loi informatique et liberté » cliquez-ici.