Maison neuve à
Saint-Barthélemy-d'Anjou (49124) Référence : CP2285677_3

Prix du projet : Maison avec Terrain

prix 289 000 €

  • 4 pièces
  • 2 chambres
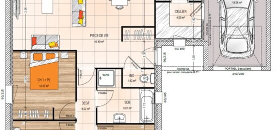
  • Surface maison 50 m2

Maison F4 (50 m²) à vendre à Saint-Barthélemy-d'Anjou
CENTRE-VILLE - MAISON 4 PIÈCES NEUVE
À 6 km d'Angers, Maisons Bernard Jambert Angers vous propose cette maison de 4 pièces de plain-pied de 50 m² et de 494 m² de terrain dans le centre-ville de Saint-Barthélemy-d'Anjou (49124).
Elle dispose de deux chambres, d'une cuisine et d'une salle de bains. La maison est neuve.
Il y a plusieurs établissements scolaires (maternelle, élémentaire, primaire et collège) dans la commune. Côté transports en commun, on trouve cinq gares à moins de 10 minutes en voiture. Les autoroutes A87N et A11 sont accessibles à moins de 4 km. Il y a un commerce à proximité du bien.
Elle est à vendre pour la somme de 289 000 €.
Prenez contact avec Carole PORCHER (tél : 06-88-98-52-77) pour obtenir de plus amples informations sur la maison, sur les démarches à suivre ou sur les modalités de vente.

Mentions légales

Terrain proposé par un partenaire foncier selon disponibilités et autorisation de publicité au prix de 147 900 €. Hors droit d'enregistrement et frais de notaire. Terrain + Maison proposés au prix de 141 100 € (Hors branchements et raccordements, papiers peints, peintures, revêtement de sol dans les chambres. Tarif modifiable sans préavis). Etiquette énergie : A. Différents modèles disponibles pour ce terrain. Assurances et garanties du constructeur (RC professionnelle, décennale, dommage ouvrage, garantie de remboursement de l'acompte, livraison à prix et délai convenu) : https://www.maisons-bernard-jambert.com/informations-legales/.

Contactez l'agence de Angers

02 41 77 17 17

    * Champs obligatoires

    Vos informations sont traitées par HEXAOM et transmises à un conseiller commercial qui vous contactera afin de répondre à votre demande. Les plans et images présentés sur notre site sont la propriété d’HEXAOM et ne peuvent pas être reproduits sans son accord. Pour retrouver notre politique de protection des données personnelles et exercer vos droits conformément à la « loi informatique et liberté » cliquez-ici.