Maison neuve à
Saint-Augustin-des-Bois (49170) Référence : RS2434349_3

Prix du projet : Maison avec Terrain

prix 274 600 €

  • 5 pièces
  • 4 chambres
  • Surface maison 99 m2

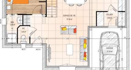
Saint-Augustin-des-Bois : maison T5 (99 m²) à vendre
MAISON 5 PIÈCES NEUVE - PROCHE D'ANGERS
À vendre : localisée à quelques kilomètres d'Angers, votre agence Maisons Bernard Jambert Angers est heureuse de vous proposer à Saint-Augustin-des-Bois (49170), cette maison de 5 pièces de 99 m² et de 495 m² de terrain. Son intérieur inclut quatre chambres, une cuisine et deux salles de bains.
Cette maison comporte 2 niveaux. Elle est neuve.
On trouve l'École Primaire Privée Sainte Monique et l'École Primaire Publique Albert Jacquard à moins de 10 minutes à pied. Niveau transports, il y a la gare Champtocé-sur-Loire à moins de 10 minutes en voiture. L'autoroute A11 est accessible à 4 km. On trouve une bibliothèque et une épicerie dans les environs.
Elle est proposée à l'achat pour 274 600 €.
Contactez notre agence (Roman SALAS : 02-41-77-17-17) pour plus d'informations sur la maison.

Mentions légales

Terrain proposé par un partenaire foncier selon disponibilités et autorisation de publicité au prix de 62 669 €. Hors droit d'enregistrement et frais de notaire. Terrain + Maison proposés au prix de 274 600 € (Hors branchements et raccordements, papiers peints, peintures, revêtement de sol dans les chambres. Tarif modifiable sans préavis). Etiquette énergie : A. Différents modèles disponibles pour ce terrain. Assurances et garanties du constructeur (RC professionnelle, décennale, dommage ouvrage, garantie de remboursement de l'acompte, livraison à prix et délai convenu) : https://www.maisons-bernard-jambert.com/informations-legales/.

Contactez l'agence de Angers

02 41 77 17 17

    * Champs obligatoires

    Vos informations sont traitées par HEXAOM et transmises à un conseiller commercial qui vous contactera afin de répondre à votre demande. Les plans et images présentés sur notre site sont la propriété d’HEXAOM et ne peuvent pas être reproduits sans son accord. Pour retrouver notre politique de protection des données personnelles et exercer vos droits conformément à la « loi informatique et liberté » cliquez-ici.