Maison neuve à
Saint-Augustin-des-Bois (49170) Référence : RS2370849_1

Prix du projet : Maison avec Terrain

prix 258 400 €

  • 5 pièces
  • 3 chambres
  • Surface maison 85 m2

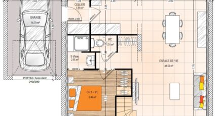
VENTE : maison de 5 pièces (85 m²) à Saint-Augustin-des-Bois
MAISON 5 PIÈCES NEUVE - PROCHE D'ANGERS
À quelques kilomètres d'Angers, nous sommes heureux de vous présenter cette maison de 5 pièces de 85 m² à Saint-Augustin-des-Bois (49170).
Cette maison comporte 2 niveaux. Elle offre trois chambres, une cuisine et deux salles de bains. Cette maison est neuve.
Le terrain de la propriété s'étend sur 495 m².
Il y a l'École Primaire Privée Sainte Monique et l'École Primaire Publique Albert Jacquard à moins de 10 minutes à pied. Niveau transports en commun, on trouve la gare Champtocé-sur-Loire à moins de 10 minutes en voiture. Il y a un accès à l'autoroute A11 à 4 km. Il y a une bibliothèque et une épicerie à proximité du logement.
Son prix de vente est de 258 400 €.
N'hésitez pas à prendre contact avec Roman SALAS (02-41-77-17-17) pour obtenir de plus amples informations sur la maison. Maisons Bernard Jambert Angers vous accompagne dans tous vos projets immobiliers et dans toutes vos démarches.

Mentions légales

Terrain proposé par un partenaire foncier selon disponibilités et autorisation de publicité au prix de 62 669 €. Hors droit d'enregistrement et frais de notaire. Terrain + Maison proposés au prix de 195 731 € (Hors branchements et raccordements, papiers peints, peintures, revêtement de sol dans les chambres. Tarif modifiable sans préavis). Etiquette énergie : A. Différents modèles disponibles pour ce terrain. Assurances et garanties du constructeur (RC professionnelle, décennale, dommage ouvrage, garantie de remboursement de l'acompte, livraison à prix et délai convenu) : https://www.maisons-bernard-jambert.com/informations-legales/.

Contactez l'agence de Angers

02 41 77 17 17

    * Champs obligatoires

    Vos informations sont traitées par HEXAOM et transmises à un conseiller commercial qui vous contactera afin de répondre à votre demande. Les plans et images présentés sur notre site sont la propriété d’HEXAOM et ne peuvent pas être reproduits sans son accord. Pour retrouver notre politique de protection des données personnelles et exercer vos droits conformément à la « loi informatique et liberté » cliquez-ici.