Maison neuve à
Saint-Augustin-des-Bois (49170) Référence : RS2343756_4

Prix du projet : Maison avec Terrain

prix 247 600 €

  • 5 pièces
  • 3 chambres
  • Surface maison 85 m2

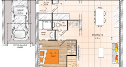
Saint-Augustin-des-Bois : maison F5 (85 m²) en vente
PROCHE D'ANGERS - MAISON 5 PIÈCES NEUVE
En vente à quelques kilomètres d'Angers, notre agence Maisons Bernard Jambert Angers est ravie de vous présenter cette maison de 5 pièces de 85 m² à Saint-Augustin-des-Bois (49170).
C'est une maison de 2 niveaux. Elle compte trois chambres, une cuisine et deux salles de bains. La maison est neuve.
Le terrain de la propriété est de 495 m².
L'École Primaire Privée Sainte Monique et l'École Primaire Publique Albert Jacquard sont implantées à moins de 10 minutes à pied. Niveau transports, on trouve la gare Champtocé-sur-Loire à moins de 10 minutes en voiture. L'autoroute A11 est accessible à 4 km. Il y a une bibliothèque et une épicerie à quelques minutes du logement.
Son prix de vente est de 247 600 €.
N'hésitez pas à prendre contact avec Roman SALAS (02-41-77-17-17) pour tout renseignement sur cette maison.

Mentions légales

Terrain proposé par un partenaire foncier selon disponibilités et autorisation de publicité au prix de 62 669 €. Hors droit d'enregistrement et frais de notaire. Maison proposée, avec un contrat de construction de maison individuelle, dans le cadre de la loi du 19/12/1990, au prix de 184 931 € (Hors branchements et raccordements, papiers peints, peintures, revêtement de sol dans les chambres, qui sont chiffrés dans les travaux qui restent à charge du client. Tarif modifiable sans préavis). Étiquette énergie : A. Différents modèles disponibles pour ce terrain. Assurances et garanties du constructeur comprises (RC professionnelle, décennale, dommage ouvrage).

Contactez l'agence de Angers

02 41 77 17 17

    * Champs obligatoires

    Vos informations sont traitées par HEXAOM et transmises à un conseiller commercial qui vous contactera afin de répondre à votre demande. Les plans et images présentés sur notre site sont la propriété d’HEXAOM et ne peuvent pas être reproduits sans son accord. Pour retrouver notre politique de protection des données personnelles et exercer vos droits conformément à la « loi informatique et liberté » cliquez-ici.