Maison neuve à
Melay (49120) Référence : MJ2432279_2

Prix du projet : Maison avec Terrain

prix 212 500 €

  • 5 pièces
  • 3 chambres
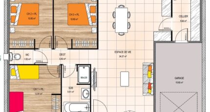
  • Surface maison 80 m2

Melay : maison de 5 pièces (80 m²) à vendre
IDÉALEMENT SITUÉE - MAISON 5 PIÈCES NEUVE
À vendre : située à deux pas de Cholet, votre agence Maisons Bernard Jambert Angers est heureuse de vous proposer cette maison de 5 pièces de plain-pied de 80 m² idéalement située dans Melay (49120).
Elle inclut trois chambres, une cuisine et une salle de bains. Cette maison est neuve.
Le terrain de la propriété est de 388 m².
Le bien se trouve dans un quartier attractif. Il y a l'École Primaire Privée Sacré Coeur à moins de 10 minutes à pied. Côté transports en commun, on trouve la gare Chemillé-en-Anjou à moins de 10 minutes en voiture. L'autoroute A87 est accessible à 7 km. Il y a un commerce et une épicerie dans les environs.
Son prix de vente est de 212 500 €.
Prenez contact avec notre agence (JANNEAU Mathieu : 06-01-35-24-98) pour toute information sur la maison, sur les démarches à suivre ou sur les modalités de vente. Maisons Bernard Jambert Angers vous accompagne à toutes les étapes de l'achat et dans tous vos projets immobiliers.

Mentions légales

Terrain proposé par un partenaire foncier selon disponibilités et autorisation de publicité au prix de 36 000 €. Hors droit d'enregistrement et frais de notaire. Terrain + Maison proposés au prix de 212 500 € (Hors branchements et raccordements, papiers peints, peintures, revêtement de sol dans les chambres. Tarif modifiable sans préavis). Etiquette énergie : A. Différents modèles disponibles pour ce terrain. Assurances et garanties du constructeur (RC professionnelle, décennale, dommage ouvrage, garantie de remboursement de l'acompte, livraison à prix et délai convenu) : https://www.maisons-bernard-jambert.com/informations-legales/.

Contactez l'agence de Angers

02 41 77 17 17

    * Champs obligatoires

    Vos informations sont traitées par HEXAOM et transmises à un conseiller commercial qui vous contactera afin de répondre à votre demande. Les plans et images présentés sur notre site sont la propriété d’HEXAOM et ne peuvent pas être reproduits sans son accord. Pour retrouver notre politique de protection des données personnelles et exercer vos droits conformément à la « loi informatique et liberté » cliquez-ici.