Maison neuve à
Mazé (49630) Référence : CP2392926_1

Prix du projet : Maison avec Terrain

prix 279 800 €

  • 6 pièces
  • 4 chambres
  • Surface maison 105 m2

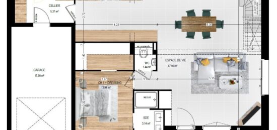
VENTE : maison F6 (105 m²) à Mazé
EMPLACEMENT PRIVILÉGIÉ - MAISON 6 PIÈCES NEUVE
À deux pas d'Angers, ayez le coup de coeur pour en vente, bénéficiant d'un emplacement d'exception dans Mazé (49630), cette maison de 6 pièces de 105 m².
Il s'agit d'une maison de 2 niveaux. Elle compte quatre chambres, une cuisine et deux salles de bains. Cette maison est neuve.
Le terrain du bien est de 356 m².
La maison se situe dans un secteur prisé. On trouve l'École Primaire Privée Sainte Marie et l'École Maternelle Publique Gaston Chaissac à moins de 10 minutes à pied. Côté transports en commun, il y a deux gares (Saint-Mathurin-sur-Loire et La Ménitré) à moins de 10 minutes en voiture. L'autoroute A85 est accessible à 6 km. On trouve un tennis, deux commerces, deux boulangeries, un bureau de poste, une supérette et une boucherie-charcuterie à quelques minutes du logement.
Elle est proposée à l'achat pour 279 800 €.
Prenez contact avec Carole PORCHER (06-88-98-52-77) pour toute question sur la maison, sur les démarches à suivre ou sur les modalités de vente. Maisons Bernard Jambert Angers est là pour vous accompagner à toutes les étapes de votre projet.

Mentions légales

Terrain proposé par un partenaire foncier selon disponibilités et autorisation de publicité au prix de 42 720 €. Hors droit d'enregistrement et frais de notaire. Terrain + Maison proposés au prix de 279 800 € (Hors branchements et raccordements, papiers peints, peintures, revêtement de sol dans les chambres. Tarif modifiable sans préavis). Etiquette énergie : A. Différents modèles disponibles pour ce terrain. Assurances et garanties du constructeur (RC professionnelle, décennale, dommage ouvrage, garantie de remboursement de l'acompte, livraison à prix et délai convenu) : https://www.maisons-bernard-jambert.com/informations-legales/.

Contactez l'agence de Angers

02 41 77 17 17

    * Champs obligatoires

    Vos informations sont traitées par HEXAOM et transmises à un conseiller commercial qui vous contactera afin de répondre à votre demande. Les plans et images présentés sur notre site sont la propriété d’HEXAOM et ne peuvent pas être reproduits sans son accord. Pour retrouver notre politique de protection des données personnelles et exercer vos droits conformément à la « loi informatique et liberté » cliquez-ici.