Maison neuve à
Mazé (49630) Référence : RS2354458_1

Prix du projet : Maison avec Terrain

prix 291 400 €

  • 5 pièces
  • 3 chambres
  • Surface maison 85 m2

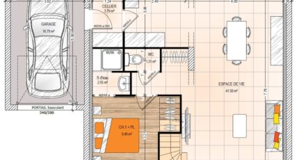
Maison T5 (85 m²) à vendre à Mazé
PROCHE D'ANGERS - MAISON 5 PIÈCES NEUVE
À 21 km d'Angers, nous sommes heureux de vous présenter à vendre à Mazé (49630), cette maison de 5 pièces de 85 m². Son intérieur inclut trois chambres, une cuisine et deux salles de bains.
Le terrain du bien s'étend sur 680 m².
Cette maison comporte 2 niveaux. Elle est neuve.
L'École Primaire Privée Sainte Marie et l'École Maternelle Publique Gaston Chaissac sont implantées à moins de 10 minutes à pied. Niveau transports, il y a deux gares (Saint-Mathurin-sur-Loire et La Ménitré) à moins de 10 minutes en voiture. On trouve un accès à l'autoroute A85 à 6 km. On trouve un tennis, deux commerces, deux boulangeries, une supérette, un bureau de poste et une boucherie-charcuterie à proximité.
Elle est proposée à l'achat pour 291 400 €.
Contactez notre agence (SALAS Roman : 02-41-77-17-17) pour plus de renseignements sur la maison.

Mentions légales

Terrain proposé par un partenaire foncier selon disponibilités et autorisation de publicité au prix de 103 000 €. Hors droit d'enregistrement et frais de notaire. Maison proposée, avec un contrat de construction de maison individuelle, dans le cadre de la loi du 19/12/1990, au prix de 188 400 € (Hors branchements et raccordements, papiers peints, peintures, revêtement de sol dans les chambres, qui sont chiffrés dans les travaux qui restent à charge du client. Tarif modifiable sans préavis). Étiquette énergie : A. Différents modèles disponibles pour ce terrain. Assurances et garanties du constructeur comprises (RC professionnelle, décennale, dommage ouvrage).

Contactez l'agence de Angers

02 41 77 17 17

    * Champs obligatoires

    Vos informations sont traitées par HEXAOM et transmises à un conseiller commercial qui vous contactera afin de répondre à votre demande. Les plans et images présentés sur notre site sont la propriété d’HEXAOM et ne peuvent pas être reproduits sans son accord. Pour retrouver notre politique de protection des données personnelles et exercer vos droits conformément à la « loi informatique et liberté » cliquez-ici.