Maison neuve à
Mazé (49630) Référence : CP2319253_3

Prix du projet : Maison avec Terrain

prix 287 900 €

  • 6 pièces
  • 4 chambres
  • Surface maison 115 m2

Mazé : maison de 6 pièces (115 m²) à vendre
MAISON 6 PIÈCES NEUVE - PROCHE D'ANGERS
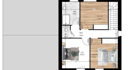
En vente à 21 km d'Angers, à Mazé (49630), nous sommes ravis de vous proposer cette maison de 6 pièces de 115 m². Elle offre quatre chambres, une cuisine et deux salles de bains.
Le terrain de la propriété est de 398 m².
Il s'agit d'une maison de 2 niveaux. Elle est neuve.
L'École Primaire Privée Sainte Marie et l'École Maternelle Publique Gaston Chaissac se trouvent à moins de 10 minutes à pied. Côté transports en commun, il y a deux gares (Saint-Mathurin-sur-Loire et La Ménitré) à moins de 10 minutes en voiture. L'autoroute A85 est accessible à 6 km. On trouve un tennis, deux commerces, deux boulangeries, un bureau de poste, une supérette et une boucherie-charcuterie à proximité de la maison.
Elle est à vendre pour la somme de 287 900 €.
N'hésitez pas à prendre contact avec notre agence (Carole PORCHER : 06-88-98-52-77) pour toute information sur le bien ou sur les modalités de vente.

Mentions légales

Terrain proposé par un partenaire foncier selon disponibilités et autorisation de publicité au prix de 47 760 €. Hors droit d'enregistrement et frais de notaire. Maison proposée, avec un contrat de construction de maison individuelle, dans le cadre de la loi du 19/12/1990, au prix de 240 140 € (Hors branchements et raccordements, papiers peints, peintures, revêtement de sol dans les chambres, qui sont chiffrés dans les travaux qui restent à charge du client. Tarif modifiable sans préavis). Étiquette énergie : A. Différents modèles disponibles pour ce terrain. Assurances et garanties du constructeur comprises (RC professionnelle, décennale, dommage ouvrage).

Contactez l'agence de Angers

02 41 77 17 17

    * Champs obligatoires

    Vos informations sont traitées par HEXAOM et transmises à un conseiller commercial qui vous contactera afin de répondre à votre demande. Les plans et images présentés sur notre site sont la propriété d’HEXAOM et ne peuvent pas être reproduits sans son accord. Pour retrouver notre politique de protection des données personnelles et exercer vos droits conformément à la « loi informatique et liberté » cliquez-ici.