Maison neuve à
Mazé (49630) Référence : RS2313310_1

Prix du projet : Maison avec Terrain

prix 271 450 €

  • 6 pièces
  • 4 chambres
  • Surface maison 126 m2

Mazé : maison de 6 pièces (126 m²) en vente
MAISON 6 PIÈCES NEUVE - PROCHE D'ANGERS
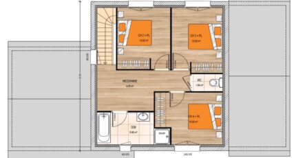
En vente : située à quelques kilomètres d'Angers, ayez le coup de coeur pour cette maison de 6 pièces de 126 m² et de 419 m² de terrain à Mazé (49630). Son intérieur est composé de quatre chambres, d'une cuisine et de deux salles de bains.
Cette maison compte 2 niveaux. Elle est neuve.
L'École Primaire Privée Sainte Marie et l'École Maternelle Publique Gaston Chaissac sont implantées à moins de 10 minutes à pied. Côté transports, on trouve deux gares (Saint-Mathurin-sur-Loire et La Ménitré) à moins de 10 minutes en voiture. L'autoroute A85 est accessible à 6 km. Il y a un tennis, deux commerces, deux boulangeries, une boucherie-charcuterie, une supérette et un bureau de poste à proximité.
Son prix de vente est de 271 450 €.
N'hésitez pas à prendre contact avec Roman SALAS (02-41-77-17-17) pour toute information sur ce bien ou sur les démarches à suivre.

Mentions légales

Terrain proposé par un partenaire foncier selon disponibilités et autorisation de publicité au prix de 50 280 €. Hors droit d'enregistrement et frais de notaire. Maison proposée, avec un contrat de construction de maison individuelle, dans le cadre de la loi du 19/12/1990, au prix de 221 170 € (Hors branchements et raccordements, papiers peints, peintures, revêtement de sol dans les chambres, qui sont chiffrés dans les travaux qui restent à charge du client. Tarif modifiable sans préavis). Étiquette énergie : A. Différents modèles disponibles pour ce terrain. Assurances et garanties du constructeur comprises (RC professionnelle, décennale, dommage ouvrage).

Contactez l'agence de Angers

02 41 77 17 17

    * Champs obligatoires

    Vos informations sont traitées par HEXAOM et transmises à un conseiller commercial qui vous contactera afin de répondre à votre demande. Les plans et images présentés sur notre site sont la propriété d’HEXAOM et ne peuvent pas être reproduits sans son accord. Pour retrouver notre politique de protection des données personnelles et exercer vos droits conformément à la « loi informatique et liberté » cliquez-ici.