Maison neuve à
Lézigné (49430) Référence : RS2437328_3

Prix du projet : Maison avec Terrain

prix 199 800 €

  • 5 pièces
  • 3 chambres
  • Surface maison 85 m2

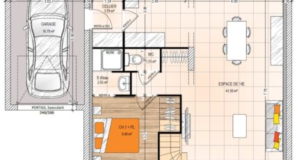
VENTE d'une maison F5 (85 m²) à Lézigné
PROCHE D'ANGERS - MAISON 5 PIÈCES NEUVE
À vendre à deux pas d'Angers, Maisons Bernard Jambert Angers vous propose à Lézigné (49430), cette maison de 5 pièces de 85 m².
Cette maison comporte 2 niveaux. Son intérieur compte trois chambres, une cuisine et deux salles de bains. La maison est neuve.
Le terrain du bien s'étend sur 431 m².
L'École Primaire Publique des p'Tits Loupiots se trouve à moins de 10 minutes à pied. Il y a un tennis, une bibliothèque et une boulangerie dans les environs.
Elle est proposée à l'achat pour 199 800 €.
Contactez Roman SALAS (tél : 02-41-77-17-17) pour plus d'informations sur la maison, sur les modalités de vente et sur les démarches à suivre. Maisons Bernard Jambert Angers est là pour vous accompagner à toutes les étapes de votre projet.

Mentions légales

Terrain proposé par un partenaire foncier selon disponibilités et autorisation de publicité au prix de 43 962 €. Hors droit d'enregistrement et frais de notaire. Terrain + Maison proposés au prix de 199 800 € (Hors branchements et raccordements, papiers peints, peintures, revêtement de sol dans les chambres. Tarif modifiable sans préavis). Etiquette énergie : A. Différents modèles disponibles pour ce terrain. Assurances et garanties du constructeur (RC professionnelle, décennale, dommage ouvrage, garantie de remboursement de l'acompte, livraison à prix et délai convenu) : https://www.maisons-bernard-jambert.com/informations-legales/.

Contactez l'agence de Angers

02 41 77 17 17

    * Champs obligatoires

    Vos informations sont traitées par HEXAOM et transmises à un conseiller commercial qui vous contactera afin de répondre à votre demande. Les plans et images présentés sur notre site sont la propriété d’HEXAOM et ne peuvent pas être reproduits sans son accord. Pour retrouver notre politique de protection des données personnelles et exercer vos droits conformément à la « loi informatique et liberté » cliquez-ici.