Maison neuve à
Lézigné (49430) Référence : RS2348576_4

Prix du projet : Maison avec Terrain

prix 239 800 €

  • 5 pièces
  • 3 chambres
  • Surface maison 85 m2

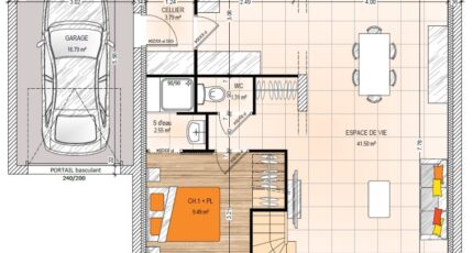
VENTE d'une maison de 5 pièces (85 m²) à Lézigné
PROCHE D'ANGERS - MAISON 5 PIÈCES NEUVE
À vendre : localisée à quelques kilomètres d'Angers, à Lézigné (49430), votre agence Maisons Bernard Jambert Angers est heureuse de vous proposer cette maison de 5 pièces de 85 m² et de 399 m² de terrain. Son intérieur inclut trois chambres, une cuisine et deux salles de bains.
Cette maison compte 2 niveaux. Elle est neuve.
L'École Primaire Publique des p'Tits Loupiots est implantée à moins de 10 minutes à pied. On trouve un accès à l'autoroute A11 à 4 km. On trouve un tennis, une bibliothèque et une boulangerie dans les environs.
Son prix de vente est de 239 800 €.
Contactez notre agence (SALAS Roman : 02-41-77-17-17) pour toute question sur cette maison ou sur les démarches à suivre. Maisons Bernard Jambert Angers est là pour vous accompagner dans tous vos projets immobiliers.

Mentions légales

Terrain proposé par un partenaire foncier selon disponibilités et autorisation de publicité au prix de 40 500 €. Hors droit d'enregistrement et frais de notaire. Maison proposée, avec un contrat de construction de maison individuelle, dans le cadre de la loi du 19/12/1990, au prix de 199 300 € (Hors branchements et raccordements, papiers peints, peintures, revêtement de sol dans les chambres, qui sont chiffrés dans les travaux qui restent à charge du client. Tarif modifiable sans préavis). Étiquette énergie : A. Différents modèles disponibles pour ce terrain. Assurances et garanties du constructeur comprises (RC professionnelle, décennale, dommage ouvrage).

Contactez l'agence de Angers

02 41 77 17 17

    * Champs obligatoires

    Vos informations sont traitées par HEXAOM et transmises à un conseiller commercial qui vous contactera afin de répondre à votre demande. Les plans et images présentés sur notre site sont la propriété d’HEXAOM et ne peuvent pas être reproduits sans son accord. Pour retrouver notre politique de protection des données personnelles et exercer vos droits conformément à la « loi informatique et liberté » cliquez-ici.