Maison neuve à
Lézigné (49430) Référence : RS2343711_3

Prix du projet : Maison avec Terrain

prix 231 400 €

  • 5 pièces
  • 3 chambres
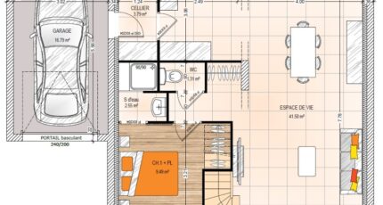
  • Surface maison 85 m2

VENTE : maison F5 (85 m²) à Lézigné
MAISON 5 PIÈCES NEUVE - PROCHE D'ANGERS
À vendre à quelques kilomètres d'Angers, nous vous proposons cette maison de 5 pièces de 85 m² à Lézigné (49430).
C'est une maison de 2 niveaux. Elle dispose de trois chambres, d'une cuisine et de deux salles de bains. Cette maison est neuve.
Le terrain du bien est de 383 m².
Il y a l'École Primaire Publique des p'Tits Loupiots à moins de 10 minutes à pied. L'autoroute A11 est accessible à 4 km. On trouve un tennis, une bibliothèque et une boulangerie à proximité du logement.
Elle est à vendre pour la somme de 231 400 €.
Contactez Roman SALAS (02-41-77-17-17) pour obtenir de plus amples informations sur cette maison, sur les modalités de vente ou sur les démarches à suivre.

Mentions légales

Terrain proposé par un partenaire foncier selon disponibilités et autorisation de publicité au prix de 39 066 €. Hors droit d'enregistrement et frais de notaire. Maison proposée, avec un contrat de construction de maison individuelle, dans le cadre de la loi du 19/12/1990, au prix de 192 334 € (Hors branchements et raccordements, papiers peints, peintures, revêtement de sol dans les chambres, qui sont chiffrés dans les travaux qui restent à charge du client. Tarif modifiable sans préavis). Étiquette énergie : A. Différents modèles disponibles pour ce terrain. Assurances et garanties du constructeur comprises (RC professionnelle, décennale, dommage ouvrage).

Contactez l'agence de Angers

02 41 77 17 17

    * Champs obligatoires

    Vos informations sont traitées par HEXAOM et transmises à un conseiller commercial qui vous contactera afin de répondre à votre demande. Les plans et images présentés sur notre site sont la propriété d’HEXAOM et ne peuvent pas être reproduits sans son accord. Pour retrouver notre politique de protection des données personnelles et exercer vos droits conformément à la « loi informatique et liberté » cliquez-ici.