Maison neuve à
Les Alleuds (49320) Référence : RS2329322_4

Prix du projet : Maison avec Terrain

prix 251 200 €

  • 5 pièces
  • 3 chambres
  • Surface maison 85 m2

Maison de 5 pièces (85 m²) à vendre aux Alleuds
PROCHE D'ANGERS - MAISON 5 PIÈCES NEUVE
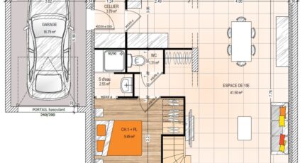
À 22 km d'Angers, en vente aux Alleuds (49320), Maisons Bernard Jambert Angers vous présente cette maison de 5 pièces de 85 m² et de 477 m² de terrain. Son intérieur dispose de trois chambres, d'une cuisine et de deux salles de bains.
Il s'agit d'une maison de 2 niveaux. Elle est neuve.
L'École Primaire Publique des Alleuds est implantée à moins de 10 minutes à pied. Les autoroutes A87N et A87 sont accessibles à moins de 13 km. Il y a une épicerie et une boucherie-charcuterie à quelques minutes du bien.
Elle est proposée à l'achat pour 251 200 €.
Contactez notre agence (SALAS Roman : 02-41-77-17-17) pour tout renseignement sur la maison, sur les démarches à suivre ou sur les modalités de vente.

Mentions légales

Terrain proposé par un partenaire foncier selon disponibilités et autorisation de publicité au prix de 60 000 €. Hors droit d'enregistrement et frais de notaire. Terrain + Maison proposés au prix de 251 200 € (Hors branchements et raccordements, papiers peints, peintures, revêtement de sol dans les chambres. Tarif modifiable sans préavis). Etiquette énergie : A. Différents modèles disponibles pour ce terrain. Assurances et garanties du constructeur (RC professionnelle, décennale, dommage ouvrage, garantie de remboursement de l'acompte, livraison à prix et délai convenu) : https://www.maisons-bernard-jambert.com/informations-legales/.

Contactez l'agence de Angers

02 41 77 17 17

    * Champs obligatoires

    Vos informations sont traitées par HEXAOM et transmises à un conseiller commercial qui vous contactera afin de répondre à votre demande. Les plans et images présentés sur notre site sont la propriété d’HEXAOM et ne peuvent pas être reproduits sans son accord. Pour retrouver notre politique de protection des données personnelles et exercer vos droits conformément à la « loi informatique et liberté » cliquez-ici.