Maison neuve à
Le Louroux-Béconnais (49370) Référence : CP2441701_4

Prix du projet : Maison avec Terrain

prix 298 000 €

  • 4 pièces
  • 2 chambres
  • Surface maison 91 m2

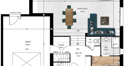
Maison F4 (91 m²) à vendre au Louroux-Béconnais
EMPLACEMENT PRIVILÉGIÉ - MAISON 4 PIÈCES NEUVE
En vente : à 26 km d'Angers, bénéficiant d'un emplacement privilégié dans Le Louroux-Béconnais (49370), nous vous proposons cette maison de 4 pièces de 91 m² et de 384 m² de terrain.
Il s'agit d'une maison de 2 niveaux. Elle comporte deux chambres, une cuisine et deux salles de bains. Cette maison est neuve.
Cette maison se trouve dans un secteur convoité. Il y a l'École Élémentaire Publique René Goscinny, l'École Primaire Privée Noël Pinot, l'École Maternelle Publique René Goscinny et le Collège Camille Claudel à moins de 10 minutes à pied. On trouve un tennis, deux commerces, deux boulangeries et un supermarché à quelques minutes à peine.
Elle est à vendre pour la somme de 298 000 €.
N'hésitez pas à prendre contact avec Carole PORCHER (06-88-98-52-77) pour toute information sur la maison ou sur les démarches à suivre. Maisons Bernard Jambert Angers vous accompagne dans tous vos projets immobiliers et à toutes les étapes de votre projet.

Mentions légales

Terrain proposé par un partenaire foncier selon disponibilités et autorisation de publicité au prix de 48 500 €. Hors droit d'enregistrement et frais de notaire. Terrain + Maison proposés au prix de 298 000 € (Hors branchements et raccordements, papiers peints, peintures, revêtement de sol dans les chambres. Tarif modifiable sans préavis). Etiquette énergie : A. Différents modèles disponibles pour ce terrain. Assurances et garanties du constructeur (RC professionnelle, décennale, dommage ouvrage, garantie de remboursement de l'acompte, livraison à prix et délai convenu) : https://www.maisons-bernard-jambert.com/informations-legales/.

Contactez l'agence de Angers

02 41 77 17 17

    * Champs obligatoires

    Vos informations sont traitées par HEXAOM et transmises à un conseiller commercial qui vous contactera afin de répondre à votre demande. Les plans et images présentés sur notre site sont la propriété d’HEXAOM et ne peuvent pas être reproduits sans son accord. Pour retrouver notre politique de protection des données personnelles et exercer vos droits conformément à la « loi informatique et liberté » cliquez-ici.