Maison neuve à
Le Louroux-Béconnais (49370) Référence : MJ2354320_2

Prix du projet : Maison avec Terrain

prix 175 500 €

  • 4 pièces
  • 2 chambres
  • Surface maison 61 m2

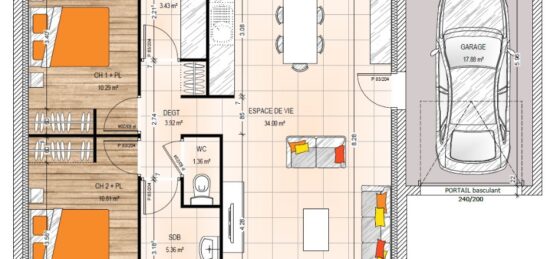
VENTE : maison de 4 pièces (61 m²) au Louroux-Béconnais
QUARTIER RECHERCHÉ - MAISON 4 PIÈCES NEUVE
En vente : localisée à 26 km d'Angers, ayez le coup de coeur pour cette maison de 4 pièces de plain-pied de 61 m² et de 286 m² de terrain, située dans un secteur attractif du Louroux-Béconnais (49370).
Elle offre deux chambres, une cuisine et une salle de bains. Cette maison est neuve.
La maison est située dans un quartier convoité. L'École Élémentaire Publique René Goscinny, l'École Primaire Privée Noël Pinot, l'École Maternelle Publique René Goscinny et le Collège Camille Claudel se trouvent à moins de 10 minutes à pied. On trouve un accès à l'autoroute A11 à 12 km. Il y a un tennis, deux commerces, deux boulangeries et un supermarché à quelques minutes.
Elle est à vendre pour la somme de 175 500 €.
Prenez contact avec Mathieu JANNEAU (tél : 06-01-35-24-98) pour tout renseignement sur la maison, sur les démarches à suivre ou sur les modalités de vente.

Mentions légales

Terrain proposé par un partenaire foncier selon disponibilités et autorisation de publicité au prix de 36 900 €. Hors droit d'enregistrement et frais de notaire. Maison proposée, avec un contrat de construction de maison individuelle, dans le cadre de la loi du 19/12/1990, au prix de 138 600 € (Hors branchements et raccordements, papiers peints, peintures, revêtement de sol dans les chambres, qui sont chiffrés dans les travaux qui restent à charge du client. Tarif modifiable sans préavis). Étiquette énergie : A. Différents modèles disponibles pour ce terrain. Assurances et garanties du constructeur comprises (RC professionnelle, décennale, dommage ouvrage).

Contactez l'agence de Angers

02 41 77 17 17

    * Champs obligatoires

    Vos informations sont traitées par HEXAOM et transmises à un conseiller commercial qui vous contactera afin de répondre à votre demande. Les plans et images présentés sur notre site sont la propriété d’HEXAOM et ne peuvent pas être reproduits sans son accord. Pour retrouver notre politique de protection des données personnelles et exercer vos droits conformément à la « loi informatique et liberté » cliquez-ici.