Maison neuve à
La Pouëze (49370) Référence : RS2424929_3

Prix du projet : Maison avec Terrain

prix 245 400 €

  • 5 pièces
  • 3 chambres
  • Surface maison 85 m2

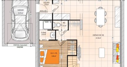
VENTE : maison T5 (85 m²) à La Pouëze
MAISON 5 PIÈCES NEUVE - PROCHE D'ANGERS
À deux pas d'Angers, nous sommes ravis de vous présenter à vendre à La Pouëze (49370), cette maison de 5 pièces de 85 m².
C'est une maison de 2 niveaux. Elle propose trois chambres, une cuisine et deux salles de bains. Cette maison est neuve.
Le terrain du bien est de 366 m².
L'École Élémentaire Publique Anne Frank, l'École Maternelle Publique l'Ardoisine et l'École Primaire Privée Sacré-Coeur sont implantées à moins de 10 minutes à pied. Il y a un accès à l'autoroute A11 à 13 km. On trouve une bibliothèque, un tennis, une boulangerie et une épicerie dans les environs.
Son prix de vente est de 245 400 €.
N'hésitez pas à prendre contact avec notre agence (SALAS Roman : 02-41-77-17-17) pour tout renseignement sur cette maison. Maisons Bernard Jambert Angers est là pour vous accompagner dans tous vos projets immobiliers.

Mentions légales

Terrain proposé par un partenaire foncier selon disponibilités et autorisation de publicité au prix de 46 250 €. Hors droit d'enregistrement et frais de notaire. Terrain + Maison proposés au prix de 245 400 € (Hors branchements et raccordements, papiers peints, peintures, revêtement de sol dans les chambres. Tarif modifiable sans préavis). Etiquette énergie : A. Différents modèles disponibles pour ce terrain. Assurances et garanties du constructeur (RC professionnelle, décennale, dommage ouvrage, garantie de remboursement de l'acompte, livraison à prix et délai convenu) : https://www.maisons-bernard-jambert.com/informations-legales/.

Contactez l'agence de Angers

02 41 77 17 17

    * Champs obligatoires

    Vos informations sont traitées par HEXAOM et transmises à un conseiller commercial qui vous contactera afin de répondre à votre demande. Les plans et images présentés sur notre site sont la propriété d’HEXAOM et ne peuvent pas être reproduits sans son accord. Pour retrouver notre politique de protection des données personnelles et exercer vos droits conformément à la « loi informatique et liberté » cliquez-ici.