Maison neuve à
La Pouëze (49370) Référence : RS2424929_1

Prix du projet : Maison avec Terrain

prix 226 700 €

  • 5 pièces
  • 3 chambres
  • Surface maison 85 m2

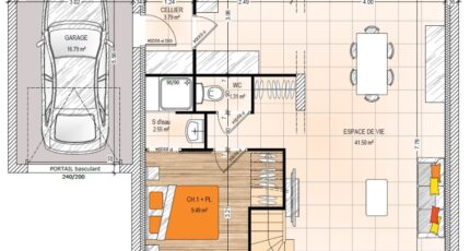
VENTE d'une maison T5 (85 m²) à La Pouëze
MAISON 5 PIÈCES NEUVE - PROCHE D'ANGERS
À deux pas d'Angers, nous vous présentons cette maison de 5 pièces de 85 m² et de 366 m² de terrain à La Pouëze (49370). Elle dispose de trois chambres, d'une cuisine et de deux salles de bains.
C'est une maison de 2 niveaux. Elle est neuve.
L'École Élémentaire Publique Anne Frank, l'École Maternelle Publique l'Ardoisine et l'École Primaire Privée Sacré-Coeur sont implantées à moins de 10 minutes à pied. On trouve un accès à l'autoroute A11 à 13 km. Il y a une bibliothèque, un tennis, une boulangerie et une épicerie à quelques minutes du logement.
Elle est à vendre pour la somme de 226 700 €.
Prenez contact avec Roman SALAS (02-41-77-17-17) pour toute question sur cette maison ou sur les modalités de vente. Donnez vie à vos projets immobiliers avec Maisons Bernard Jambert Angers.

Mentions légales

Terrain proposé par un partenaire foncier selon disponibilités et autorisation de publicité au prix de 46 250 €. Hors droit d'enregistrement et frais de notaire. Terrain + Maison proposés au prix de 226 700 € (Hors branchements et raccordements, papiers peints, peintures, revêtement de sol dans les chambres. Tarif modifiable sans préavis). Etiquette énergie : A. Différents modèles disponibles pour ce terrain. Assurances et garanties du constructeur (RC professionnelle, décennale, dommage ouvrage, garantie de remboursement de l'acompte, livraison à prix et délai convenu) : https://www.maisons-bernard-jambert.com/informations-legales/.

Contactez l'agence de Angers

02 41 77 17 17

    * Champs obligatoires

    Vos informations sont traitées par HEXAOM et transmises à un conseiller commercial qui vous contactera afin de répondre à votre demande. Les plans et images présentés sur notre site sont la propriété d’HEXAOM et ne peuvent pas être reproduits sans son accord. Pour retrouver notre politique de protection des données personnelles et exercer vos droits conformément à la « loi informatique et liberté » cliquez-ici.