Maison neuve à
La Pouëze (49370) Référence : RS2386518_4

Prix du projet : Maison avec Terrain

prix 287 500 €

  • 6 pièces
  • 5 chambres
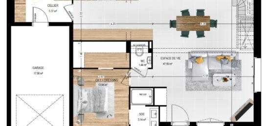
  • Surface maison 109 m2

Maison T6 (109 m²) à vendre à La Pouëze
MAISON 6 PIÈCES NEUVE - PROCHE D'ANGERS
En vente : localisée à 20 km d'Angers, à La Pouëze (49370), votre agence Maisons Bernard Jambert Angers est heureuse de vous présenter cette maison de 6 pièces de 109 m² et de 431 m² de terrain. Elle offre cinq chambres, une cuisine et deux salles de bains.
Cette maison possède 2 niveaux. Elle est neuve.
L'École Élémentaire Publique Anne Frank, l'École Maternelle Publique l'Ardoisine et l'École Primaire Privée Sacré-Coeur sont implantées à moins de 10 minutes à pied. L'autoroute A11 est accessible à 13 km. Il y a une bibliothèque, un tennis, une boulangerie et une épicerie à quelques minutes de la maison.
Elle est à vendre pour la somme de 287 500 €.
Contactez notre constructeur (Roman SALAS : 02-41-77-17-17) pour plus de renseignements sur la maison, sur les démarches à suivre ou sur les modalités de vente. Maisons Bernard Jambert Angers est là pour vous accompagner à toutes les étapes de votre projet.

Mentions légales

Terrain proposé par un partenaire foncier selon disponibilités et autorisation de publicité au prix de 52 877 €. Hors droit d'enregistrement et frais de notaire. Terrain + Maison proposés au prix de 234 623 € (Hors branchements et raccordements, papiers peints, peintures, revêtement de sol dans les chambres. Tarif modifiable sans préavis). Etiquette énergie : A. Différents modèles disponibles pour ce terrain. Assurances et garanties du constructeur (RC professionnelle, décennale, dommage ouvrage, garantie de remboursement de l'acompte, livraison à prix et délai convenu) : https://www.maisons-bernard-jambert.com/informations-legales/.

Contactez l'agence de Angers

02 41 77 17 17

    * Champs obligatoires

    Vos informations sont traitées par HEXAOM et transmises à un conseiller commercial qui vous contactera afin de répondre à votre demande. Les plans et images présentés sur notre site sont la propriété d’HEXAOM et ne peuvent pas être reproduits sans son accord. Pour retrouver notre politique de protection des données personnelles et exercer vos droits conformément à la « loi informatique et liberté » cliquez-ici.