Maison neuve à
La Pouëze (49370) Référence : RS2370916_3

Prix du projet : Maison avec Terrain

prix 239 800 €

  • 5 pièces
  • 3 chambres
  • Surface maison 85 m2

La Pouëze : maison de 5 pièces (85 m²) en vente
PROCHE D'ANGERS - MAISON 5 PIÈCES NEUVE
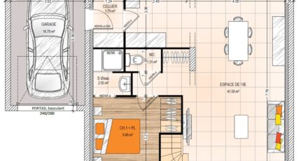
À vendre à deux pas d'Angers, à La Pouëze (49370), nous vous proposons cette maison de 5 pièces de 85 m². Son intérieur comporte trois chambres, une cuisine et deux salles de bains.
Le terrain de la maison s'étend sur 431 m².
Cette maison compte 2 niveaux. Elle est neuve.
L'École Élémentaire Publique Anne Frank, l'École Maternelle Publique l'Ardoisine et l'École Primaire Privée Sacré-Coeur sont implantées à moins de 10 minutes à pied. L'autoroute A11 est accessible à 13 km. On trouve une bibliothèque, un tennis, une boulangerie et une épicerie à quelques minutes à peine.
Elle est à vendre pour la somme de 239 800 €.
N'hésitez pas à prendre contact avec Roman SALAS (tél : 02-41-77-17-17) pour toute information sur la maison ou sur les démarches à suivre.

Mentions légales

Terrain proposé par un partenaire foncier selon disponibilités et autorisation de publicité au prix de 52 850 €. Hors droit d'enregistrement et frais de notaire. Terrain + Maison proposés au prix de 186 950 € (Hors branchements et raccordements, papiers peints, peintures, revêtement de sol dans les chambres. Tarif modifiable sans préavis). Etiquette énergie : A. Différents modèles disponibles pour ce terrain. Assurances et garanties du constructeur (RC professionnelle, décennale, dommage ouvrage, garantie de remboursement de l'acompte, livraison à prix et délai convenu) : https://www.maisons-bernard-jambert.com/informations-legales/.

Contactez l'agence de Angers

02 41 77 17 17

    * Champs obligatoires

    Vos informations sont traitées par HEXAOM et transmises à un conseiller commercial qui vous contactera afin de répondre à votre demande. Les plans et images présentés sur notre site sont la propriété d’HEXAOM et ne peuvent pas être reproduits sans son accord. Pour retrouver notre politique de protection des données personnelles et exercer vos droits conformément à la « loi informatique et liberté » cliquez-ici.