Maison neuve à
La Pouëze (49370) Référence : RS2348563_3

Prix du projet : Maison avec Terrain

prix 334 600 €

  • 5 pièces
  • 5 chambres
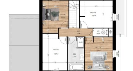
  • Surface maison 132 m2

Maison F5 (132 m²) à vendre à La Pouëze
MAISON 5 PIÈCES NEUVE - PROCHE D'ANGERS
À vendre à 20 km d'Angers, nous sommes ravis de vous proposer cette maison de 5 pièces de 132 m² et de 484 m² de terrain à La Pouëze (49370).
C'est une maison de 2 niveaux. Elle dispose de cinq chambres, d'une cuisine et de deux salles de bains. La maison est neuve.
Il y a l'École Élémentaire Publique Anne Frank, l'École Maternelle Publique l'Ardoisine et l'École Primaire Privée Sacré-Coeur à moins de 10 minutes à pied. L'autoroute A11 est accessible à 13 km. On trouve une bibliothèque, un tennis, une boulangerie et une épicerie à proximité du logement.
Son prix de vente est de 334 600 €.
Contactez Roman SALAS (02-41-77-17-17) pour obtenir de plus amples informations sur la maison. Faites de vos projets immobiliers une réalité avec Maisons Bernard Jambert Angers.

Mentions légales

Terrain proposé par un partenaire foncier selon disponibilités et autorisation de publicité au prix de 60 500 €. Hors droit d'enregistrement et frais de notaire. Maison proposée, avec un contrat de construction de maison individuelle, dans le cadre de la loi du 19/12/1990, au prix de 274 100 € (Hors branchements et raccordements, papiers peints, peintures, revêtement de sol dans les chambres, qui sont chiffrés dans les travaux qui restent à charge du client. Tarif modifiable sans préavis). Étiquette énergie : A. Différents modèles disponibles pour ce terrain. Assurances et garanties du constructeur comprises (RC professionnelle, décennale, dommage ouvrage).

Contactez l'agence de Angers

02 41 77 17 17

    * Champs obligatoires

    Vos informations sont traitées par HEXAOM et transmises à un conseiller commercial qui vous contactera afin de répondre à votre demande. Les plans et images présentés sur notre site sont la propriété d’HEXAOM et ne peuvent pas être reproduits sans son accord. Pour retrouver notre politique de protection des données personnelles et exercer vos droits conformément à la « loi informatique et liberté » cliquez-ici.