Maison neuve à
La Pouëze (49370) Référence : RS2348563_1

Prix du projet : Maison avec Terrain

prix 224 600 €

  • 5 pièces
  • 3 chambres
  • Surface maison 86 m2

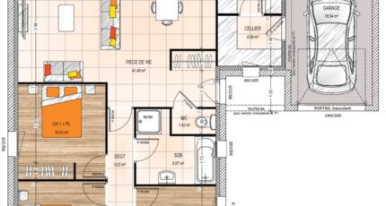
VENTE : maison de 5 pièces (86 m²) à La Pouëze
MAISON 5 PIÈCES NEUVE - PROCHE D'ANGERS
À 20 km d'Angers, en vente à La Pouëze (49370), venez découvrir cette maison de 5 pièces de plain-pied de 86 m² et de 484 m² de terrain. Conçue de plain-pied, elle comporte trois chambres, une cuisine et une salle de bains.
Cette maison est neuve.
L'École Élémentaire Publique Anne Frank, l'École Maternelle Publique l'Ardoisine et l'École Primaire Privée Sacré-Coeur sont implantées à moins de 10 minutes à pied. On trouve un accès à l'autoroute A11 à 13 km. Il y a une bibliothèque, un tennis, une boulangerie et une épicerie à quelques minutes à peine.
Elle est proposée à l'achat pour 224 600 €.
Prenez contact avec Roman SALAS (tél : 02-41-77-17-17) pour toute question sur la maison. Faites de vos projets immobiliers une réalité avec Maisons Bernard Jambert Angers.

Mentions légales

Terrain proposé par un partenaire foncier selon disponibilités et autorisation de publicité au prix de 60 500 €. Hors droit d'enregistrement et frais de notaire. Maison proposée, avec un contrat de construction de maison individuelle, dans le cadre de la loi du 19/12/1990, au prix de 164 100 € (Hors branchements et raccordements, papiers peints, peintures, revêtement de sol dans les chambres, qui sont chiffrés dans les travaux qui restent à charge du client. Tarif modifiable sans préavis). Étiquette énergie : A. Différents modèles disponibles pour ce terrain. Assurances et garanties du constructeur comprises (RC professionnelle, décennale, dommage ouvrage).

Contactez l'agence de Angers

02 41 77 17 17

    * Champs obligatoires

    Vos informations sont traitées par HEXAOM et transmises à un conseiller commercial qui vous contactera afin de répondre à votre demande. Les plans et images présentés sur notre site sont la propriété d’HEXAOM et ne peuvent pas être reproduits sans son accord. Pour retrouver notre politique de protection des données personnelles et exercer vos droits conformément à la « loi informatique et liberté » cliquez-ici.