Maison neuve à
La Pouëze (49370) Référence : RS2333323_1

Prix du projet : Maison avec Terrain

prix 241 500 €

  • 5 pièces
  • 3 chambres
  • Surface maison 85 m2

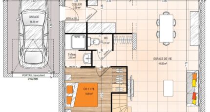
Maison T5 (85 m²) en vente à La Pouëze
PROCHE D'ANGERS - MAISON 5 PIÈCES NEUVE
À vendre : localisée à 20 km d'Angers, nous vous proposons à La Pouëze (49370), cette maison de 5 pièces de 85 m² et de 484 m² de terrain.
Il s'agit d'une maison de 2 niveaux. Son intérieur inclut trois chambres, une cuisine et deux salles de bains. La maison est neuve.
Il y a l'École Élémentaire Publique Anne Frank, l'École Maternelle Publique l'Ardoisine et l'École Primaire Privée Sacré-Coeur à moins de 10 minutes à pied. L'autoroute A11 est accessible à 13 km. On trouve une bibliothèque, un tennis, une boulangerie et une épicerie dans les environs.
Son prix de vente est de 241 500 €.
N'hésitez pas à prendre contact avec Roman SALAS (02-41-77-17-17) pour obtenir de plus amples informations sur cette maison ou sur les démarches à suivre. Maisons Bernard Jambert Angers vous accompagne dans tous vos projets immobiliers et à toutes les étapes de votre projet.

Mentions légales

Terrain proposé par un partenaire foncier selon disponibilités et autorisation de publicité au prix de 60 502 €. Hors droit d'enregistrement et frais de notaire. Maison proposée, avec un contrat de construction de maison individuelle, dans le cadre de la loi du 19/12/1990, au prix de 180 998 € (Hors branchements et raccordements, papiers peints, peintures, revêtement de sol dans les chambres, qui sont chiffrés dans les travaux qui restent à charge du client. Tarif modifiable sans préavis). Étiquette énergie : A. Différents modèles disponibles pour ce terrain. Assurances et garanties du constructeur comprises (RC professionnelle, décennale, dommage ouvrage).

Contactez l'agence de Angers

02 41 77 17 17

    * Champs obligatoires

    Vos informations sont traitées par HEXAOM et transmises à un conseiller commercial qui vous contactera afin de répondre à votre demande. Les plans et images présentés sur notre site sont la propriété d’HEXAOM et ne peuvent pas être reproduits sans son accord. Pour retrouver notre politique de protection des données personnelles et exercer vos droits conformément à la « loi informatique et liberté » cliquez-ici.