Maison neuve à
La Possonnière (49170) Référence : MJ2354377_4

Prix du projet : Maison avec Terrain

prix 352 500 €

  • 6 pièces
  • 4 chambres
  • Surface maison 130 m2

VENTE d'une maison de 6 pièces (130 m²) à La Possonnière
EMPLACEMENT PRIVILÉGIÉ - MAISON 6 PIÈCES NEUVE
À vendre : située à deux pas d'Angers, nous sommes ravis de vous présenter cette maison de 6 pièces de 130 m² bénéficiant d'un emplacement d'exception dans La Possonnière (49170).
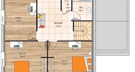
Cette maison possède 2 niveaux. Elle propose quatre chambres, une cuisine et deux salles de bains. Cette maison est neuve.
Le terrain du bien est de 558 m².
La maison se situe dans un secteur convoité. Il y a l'École Élémentaire Publique les Goganes, l'École Primaire Privée St René et l'École Maternelle Publique les Petites Goganes à moins de 10 minutes à pied. Niveau transports, on trouve la gare La Possonnière à quelques pas de la maison. Les autoroutes A87 et A11 sont accessibles à moins de 10 km. Il y a un tennis, deux commerces, une boulangerie et une supérette à proximité de la maison.
Son prix de vente est de 352 500 €.
Prenez contact avec notre agence (Mathieu JANNEAU : 06-01-35-24-98) pour toute question sur la maison. Maisons Bernard Jambert Angers vous accompagne à toutes les étapes de l'achat et dans toutes vos démarches.

Mentions légales

Terrain proposé par un partenaire foncier selon disponibilités et autorisation de publicité au prix de 85 000 €. Hors droit d'enregistrement et frais de notaire. Maison proposée, avec un contrat de construction de maison individuelle, dans le cadre de la loi du 19/12/1990, au prix de 267 500 € (Hors branchements et raccordements, papiers peints, peintures, revêtement de sol dans les chambres, qui sont chiffrés dans les travaux qui restent à charge du client. Tarif modifiable sans préavis). Étiquette énergie : A. Différents modèles disponibles pour ce terrain. Assurances et garanties du constructeur comprises (RC professionnelle, décennale, dommage ouvrage).

Contactez l'agence de Angers

02 41 77 17 17

    * Champs obligatoires

    Vos informations sont traitées par HEXAOM et transmises à un conseiller commercial qui vous contactera afin de répondre à votre demande. Les plans et images présentés sur notre site sont la propriété d’HEXAOM et ne peuvent pas être reproduits sans son accord. Pour retrouver notre politique de protection des données personnelles et exercer vos droits conformément à la « loi informatique et liberté » cliquez-ici.