Maison neuve à
La Possonnière (49170) Référence : MJ2354377_1

Prix du projet : Maison avec Terrain

prix 298 500 €

  • 4 pièces
  • 3 chambres
  • Surface maison 94 m2

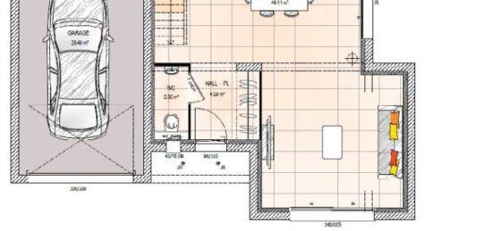
VENTE d'une maison de 4 pièces (94 m²) à La Possonnière
EMPLACEMENT PRIVILÉGIÉ - MAISON 4 PIÈCES NEUVE
En vente : située à deux pas d'Angers, notre agence Maisons Bernard Jambert Angers est heureuse de vous présenter cette maison de 4 pièces de 94 m² et de 558 m² de terrain sans vis-à-vis bénéficiant d'un emplacement d'exception dans La Possonnière (49170).
C'est une maison de plain-pied. Conçue de plain-pied, elle est composée de trois chambres, d'une cuisine et d'une salle de bains. Cette maison est neuve.
Cette maison se trouve dans un secteur recherché. L'École Élémentaire Publique les Goganes, l'École Primaire Privée St René et l'École Maternelle Publique les Petites Goganes sont implantées à moins de 10 minutes à pied. Niveau transports en commun, on trouve la gare La Possonnière à quelques pas du bien. Les autoroutes A87 et A11 sont accessibles à moins de 10 km. Il y a un tennis, deux commerces, une boulangerie et une supérette à proximité.
Elle est à vendre pour la somme de 298 500 €.
Prenez contact avec notre constructeur (JANNEAU Mathieu : 06-01-35-24-98) pour toute information sur la maison, sur les modalités de vente ou sur les démarches à suivre.

Mentions légales

Terrain proposé par un partenaire foncier selon disponibilités et autorisation de publicité au prix de 85 000 €. Hors droit d'enregistrement et frais de notaire. Maison proposée, avec un contrat de construction de maison individuelle, dans le cadre de la loi du 19/12/1990, au prix de 213 500 € (Hors branchements et raccordements, papiers peints, peintures, revêtement de sol dans les chambres, qui sont chiffrés dans les travaux qui restent à charge du client. Tarif modifiable sans préavis). Étiquette énergie : A. Différents modèles disponibles pour ce terrain. Assurances et garanties du constructeur comprises (RC professionnelle, décennale, dommage ouvrage).

Contactez l'agence de Angers

02 41 77 17 17

    * Champs obligatoires

    Vos informations sont traitées par HEXAOM et transmises à un conseiller commercial qui vous contactera afin de répondre à votre demande. Les plans et images présentés sur notre site sont la propriété d’HEXAOM et ne peuvent pas être reproduits sans son accord. Pour retrouver notre politique de protection des données personnelles et exercer vos droits conformément à la « loi informatique et liberté » cliquez-ici.