Maison neuve à
La Membrolle-sur-Longuenée (49770) Référence : RS2412880_1

Prix du projet : Maison avec Terrain

prix 289 300 €

  • 5 pièces
  • 3 chambres
  • Surface maison 85 m2

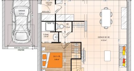
Maison F5 (85 m²) en vente à La Membrolle-sur-Longuenée
MAISON 5 PIÈCES NEUVE - PROCHE D'ANGERS
En vente à quelques kilomètres d'Angers, à La Membrolle-sur-Longuenée (49770), notre agence Maisons Bernard Jambert Angers est heureuse de vous présenter cette maison de 5 pièces de 85 m² et de 575 m² de terrain. Elle se divise en trois chambres, une cuisine et deux salles de bains.
C'est une maison de 2 niveaux. Elle est neuve.
L'École Primaire Publique le Petit Prince se trouve à moins de 10 minutes à pied. On trouve un accès à l'autoroute A11 à 6 km. Il y a une boucherie-charcuterie dans les environs.
Son prix de vente est de 289 300 €.
N'hésitez pas à prendre contact avec notre agence (SALAS Roman : 02-41-77-17-17) pour toute question sur la maison ou sur les modalités de vente. Maisons Bernard Jambert Angers vous accompagne à toutes les étapes de votre projet et dans tous vos projets immobiliers.

Mentions légales

Terrain proposé par un partenaire foncier selon disponibilités et autorisation de publicité au prix de 103 500 €. Hors droit d'enregistrement et frais de notaire. Terrain + Maison proposés au prix de 289 300 € (Hors branchements et raccordements, papiers peints, peintures, revêtement de sol dans les chambres. Tarif modifiable sans préavis). Etiquette énergie : A. Différents modèles disponibles pour ce terrain. Assurances et garanties du constructeur (RC professionnelle, décennale, dommage ouvrage, garantie de remboursement de l'acompte, livraison à prix et délai convenu) : https://www.maisons-bernard-jambert.com/informations-legales/.

Contactez l'agence de Angers

02 41 77 17 17

    * Champs obligatoires

    Vos informations sont traitées par HEXAOM et transmises à un conseiller commercial qui vous contactera afin de répondre à votre demande. Les plans et images présentés sur notre site sont la propriété d’HEXAOM et ne peuvent pas être reproduits sans son accord. Pour retrouver notre politique de protection des données personnelles et exercer vos droits conformément à la « loi informatique et liberté » cliquez-ici.