Maison neuve à
La Membrolle-sur-Longuenée (49770) Référence : CP2398296_1

Prix du projet : Maison avec Terrain

prix 386 700 €

  • 6 pièces
  • 4 chambres
  • Surface maison 140 m2

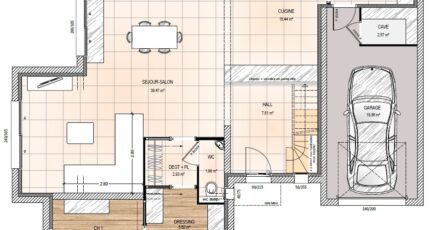
VENTE d'une maison de 6 pièces (140 m²) à La Membrolle-sur-Longuenée
IDÉALEMENT SITUÉE - MAISON 6 PIÈCES NEUVE
En vente : localisée à deux pas d'Angers, nous sommes ravis de vous proposer cette maison de 6 pièces de 140 m² et de 458 m² de terrain idéalement située dans La Membrolle-sur-Longuenée (49770).
Cette maison comporte 2 niveaux. Son intérieur propose quatre chambres, une cuisine et deux salles de bains. La maison est neuve.
La maison se trouve dans un secteur attractif. Il y a l'École Primaire Publique le Petit Prince à moins de 10 minutes à pied. L'autoroute A11 est accessible à 6 km. On trouve une boucherie-charcuterie à proximité.
Elle est à vendre pour la somme de 386 700 €.
Contactez Carole PORCHER (tél : 06-88-98-52-77) pour tout renseignement sur la maison. Faites de vos projets immobiliers une réalité avec Maisons Bernard Jambert Angers.

Mentions légales

Terrain proposé par un partenaire foncier selon disponibilités et autorisation de publicité au prix de 82 440 €. Hors droit d'enregistrement et frais de notaire. Terrain + Maison proposés au prix de 386 700 € (Hors branchements et raccordements, papiers peints, peintures, revêtement de sol dans les chambres. Tarif modifiable sans préavis). Etiquette énergie : A. Différents modèles disponibles pour ce terrain. Assurances et garanties du constructeur (RC professionnelle, décennale, dommage ouvrage, garantie de remboursement de l'acompte, livraison à prix et délai convenu) : https://www.maisons-bernard-jambert.com/informations-legales/.

Contactez l'agence de Angers

02 41 77 17 17

    * Champs obligatoires

    Vos informations sont traitées par HEXAOM et transmises à un conseiller commercial qui vous contactera afin de répondre à votre demande. Les plans et images présentés sur notre site sont la propriété d’HEXAOM et ne peuvent pas être reproduits sans son accord. Pour retrouver notre politique de protection des données personnelles et exercer vos droits conformément à la « loi informatique et liberté » cliquez-ici.